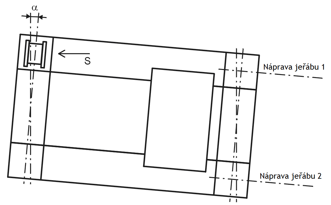
Schräglaufwinkel α
Schräglaufwinkel α
30.5.2024
008968
  • CRANEWAY 8
  • Jeřáby a jeřábové dráhy
  • Ocelové konstrukce
    • Průmyslové konstrukce a zařízení
    • Statické konstrukce
    • Posouzení stability
    • Eurocode 3
    • Eurocode 1

Schräglaufwinkel α

Používá se v
  • Vodorovná zatížení jeřábové dráhy od příčení mostových jeřábů
Sdílet