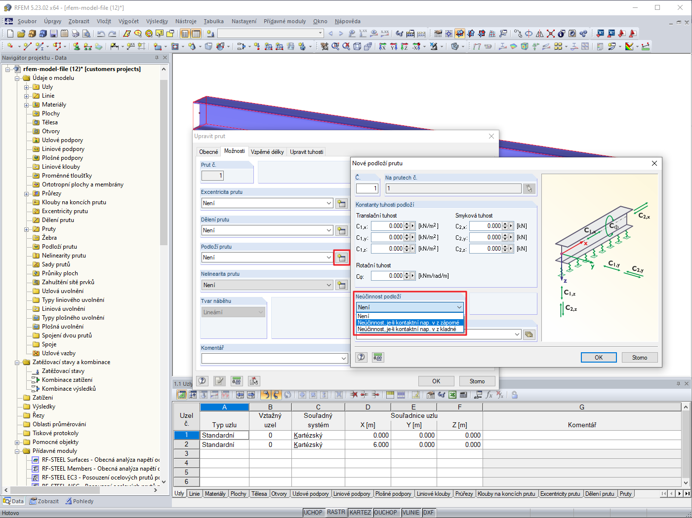
Neúčinnost pružného podloží prutu
Neúčinnost pružného podloží prutu
30.5.2024
019596
  • RFEM 5
  • RSTAB 8

Neúčinnost pružného podloží prutu

Používá se v
  • Zadání pružného podloží prutu působícího v jednom směru
Sdílet