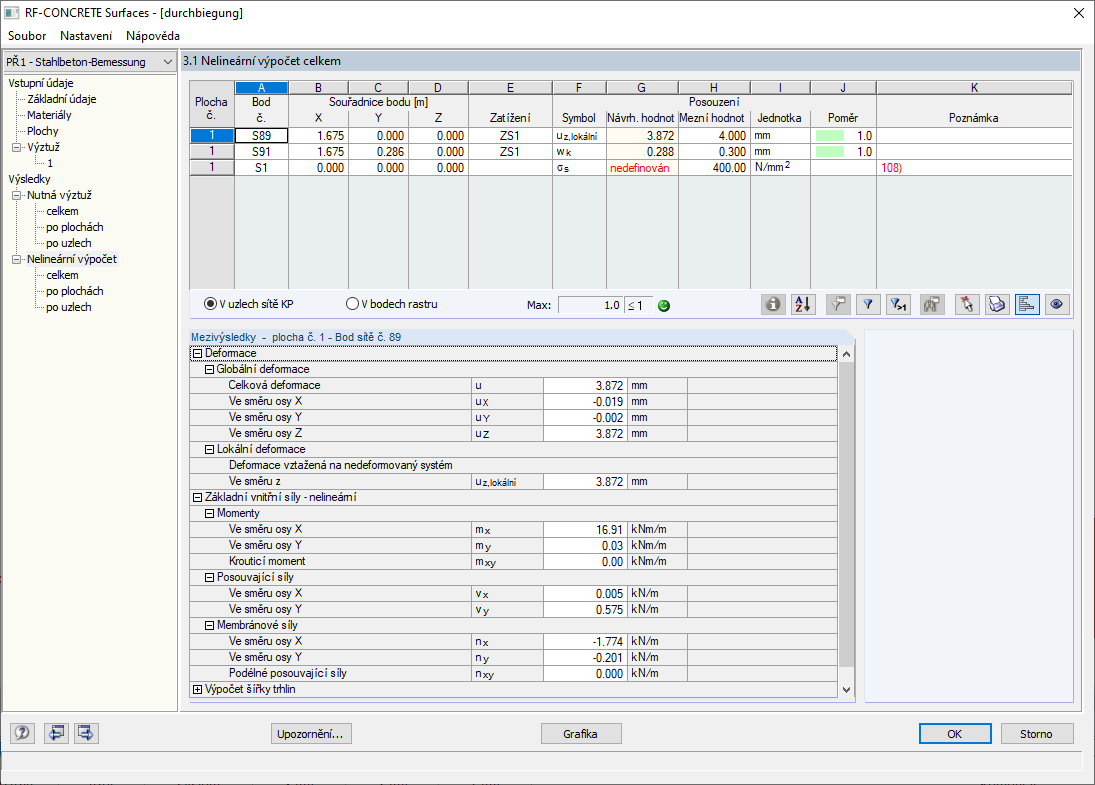
Průhyb
Průhyb
30.5.2024
019685
  • RF-CONCRETE 5
  • Betonové konstrukce
  • Eurocode 2

Průhyb

Používá se v
  • Automatické zvýšení výztuže pro posouzení deformací
Sdílet