Funkce 002739 | Info bubliny pro liniové podpory
Funkce 002739 | Info bubliny pro liniové podpory
30.5.2024
047050
  • RFEM 6
  • RSTAB 9

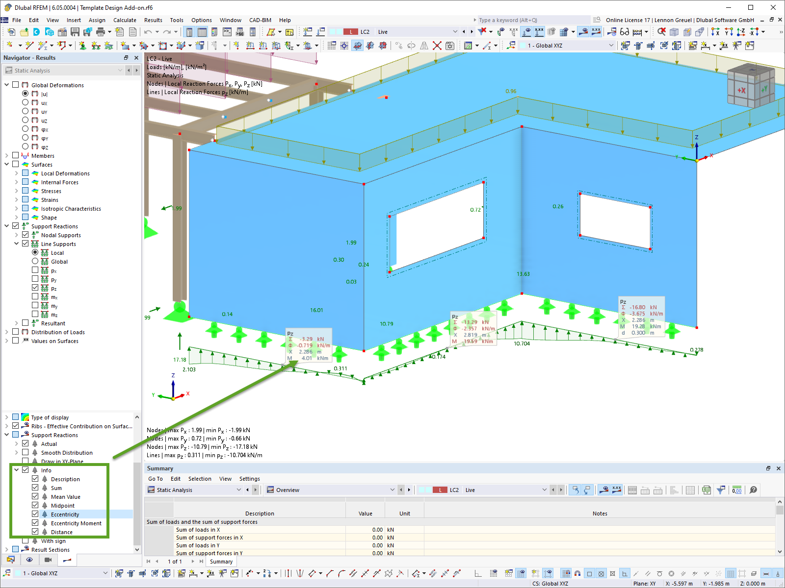
Aktivace informačních bublin pro liniové podpory v navigátoru Výsledky

Funkce 002739 | Info bubliny pro liniové podpory

Používá se v
  • Info bubliny pro liniové podpory
Sdílet