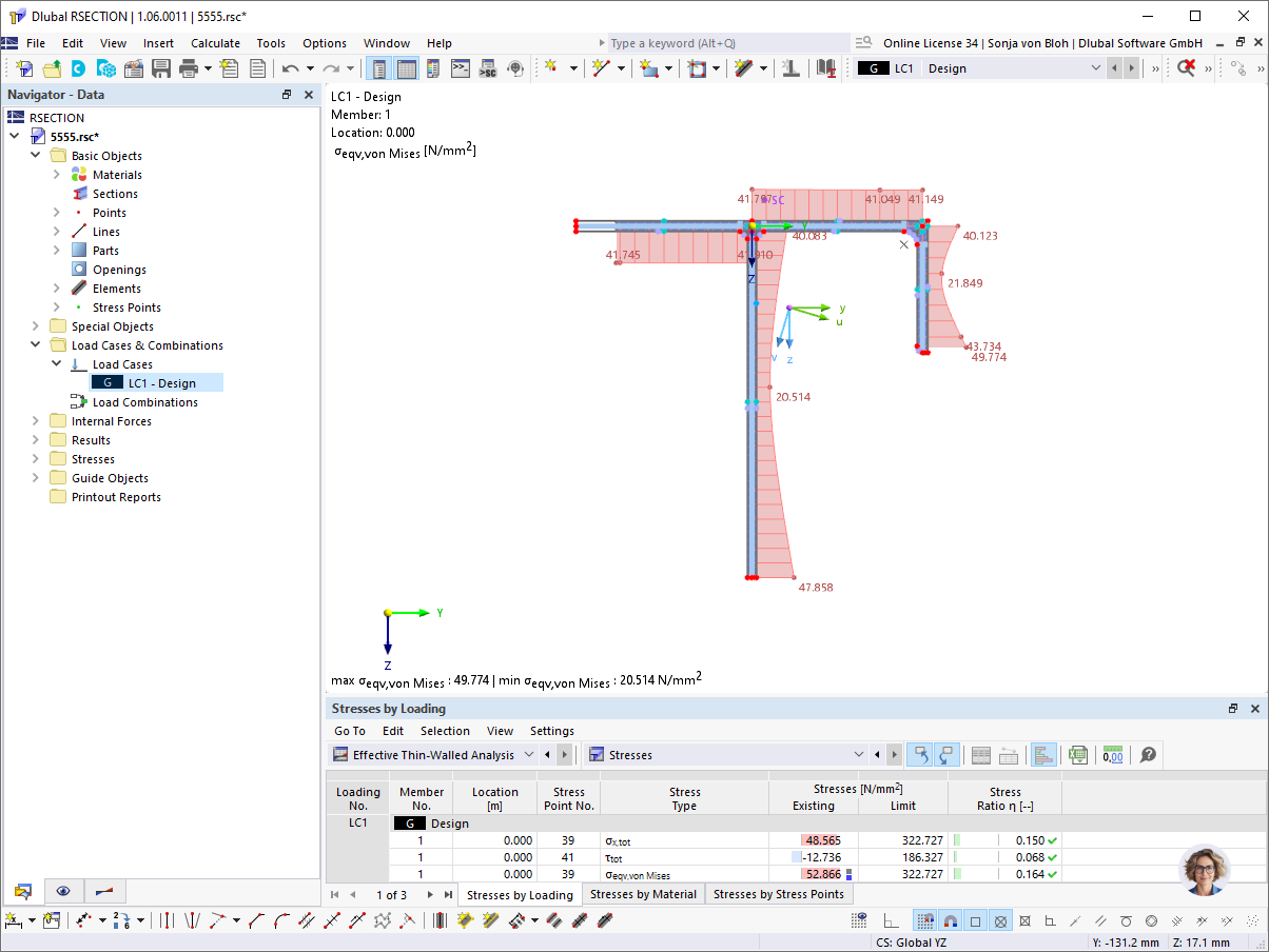
Napětí na účinném průřezu
Napětí na účinném průřezu
21.6.2024
051136
  • RSECTION 1
  • Ocelové konstrukce
  • Analýza napětí
    • Posouzení stability
    • Eurocode 3

Napětí na účinném průřezu

Sdílet