FAQ 005629 | Jak mohu analyzovat podporové reakce na liniových podporách ploch? Jsou výsledkové řezy užitečné?
FAQ 005629 | Jak mohu analyzovat podporové reakce na liniových podporách ploch? Jsou výsledkové řezy užitečné?
24.11.2024
054089
  • RFEM 6
  • Statické konstrukce
  • Metoda konečných prvků

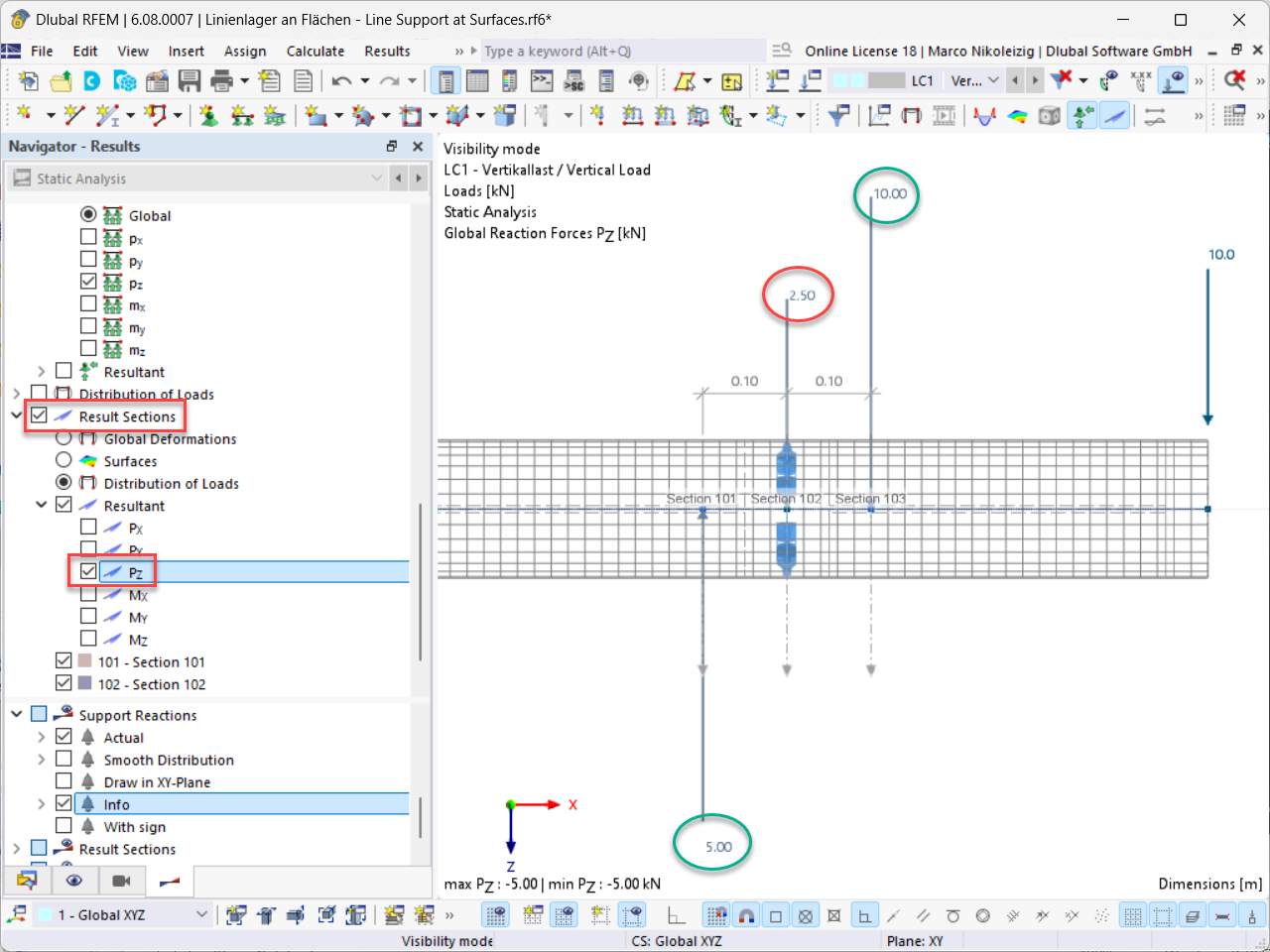
Zobrazení výsledného rozložení zatížení v řezech 101 až 103

FAQ 005629 | Jak mohu analyzovat podporové reakce na liniových podporách ploch? Jsou výsledkové řezy užitečné?

  • Liniární podpora
  • Podporová reakce
  • Výslednice
  • Podporová síla
  • Výsledkový řez
  • Průřez
  • Výsledková tabulka
  • Plošný model
  • Analýza podporové reakce
  • Skok v průběhu smykové síly
  • Podporová linie
  • Bodová podpora
  • Postup výsledků
  • Konstantní vyhlazení
  • Infobox
  • Možnosti analýzy
  • Rámová konstrukce
  • Kontrola modelování
  • Nosník o jednom poli
  • Konzola
  • Trubka
  • Průřez trubky
Sdílet