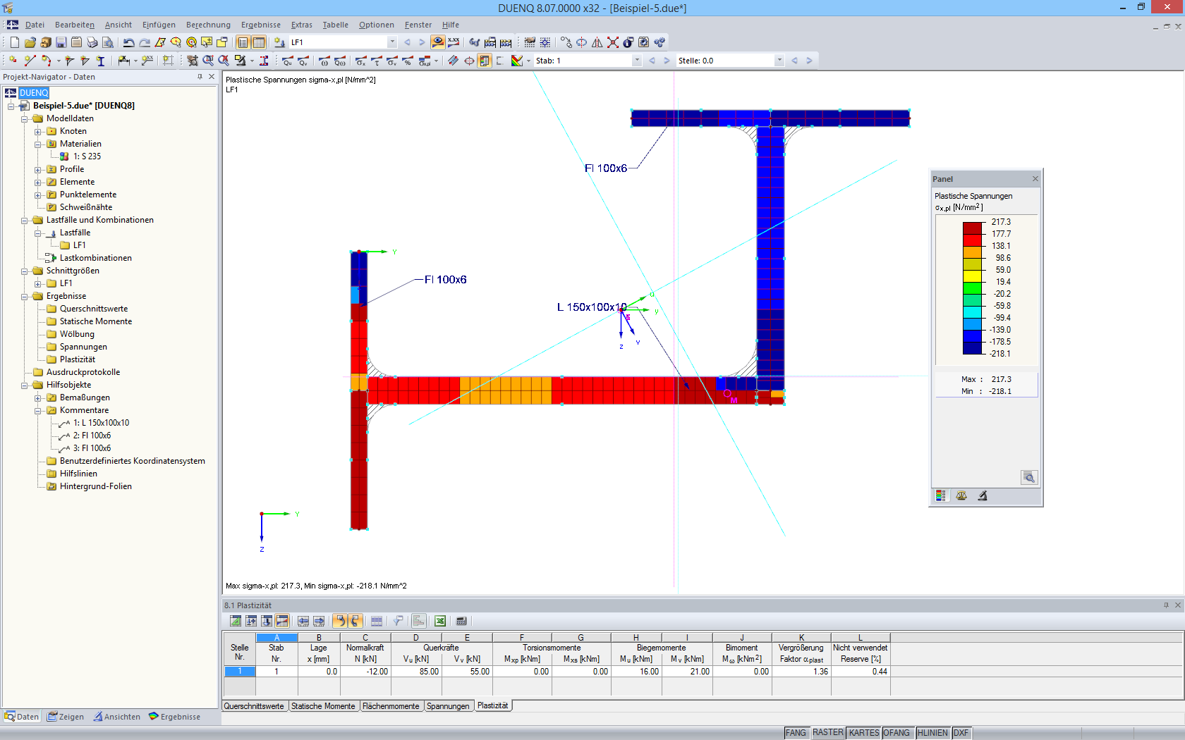
Querschnittswerte-Programm DUENQ | Ergebnisse - Verlauf der plastischen Normalspannungen
Querschnittswerte-Programm DUENQ | Ergebnisse - Verlauf der plastischen Normalspannungen
30. Mai 2024
000106

Querschnittswerte-Programm DUENQ | Ergebnisse - Verlauf der plastischen Normalspannungen

Teilen