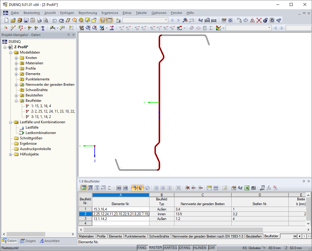
Tabelle 1.9 Beulfelder
Tabelle 1.9 Beulfelder
30. Mai 2024
018843
  • DUENQ 9
  • Stahlbau
  • Spannungsnachweis
    • Stabilitätsnachweis
    • Eurocode 3

Tabelle 1.9 Beulfelder

Verwendet in
  • Modellierung von kaltgeformten Profilen mit DUENQ in RFEM/RSTAB
3D-Modell
Mehr über 3D-Modell
  • Querschnittsmodell für Webinar Bemessung kaltgeformter Stahlprofile nach Eurocode 3
Teilen