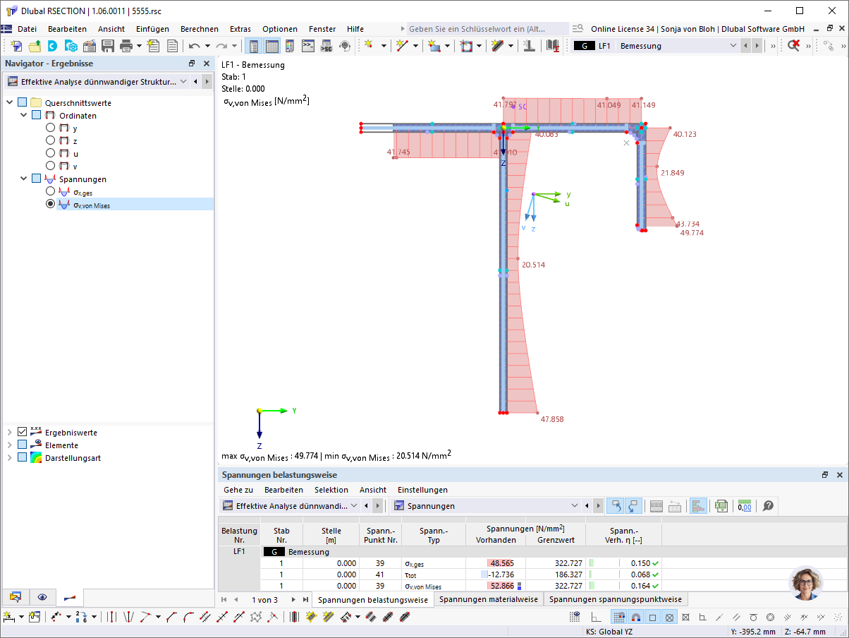
Spannungen am wirksamen Querschnitt
Spannungen am wirksamen Querschnitt
21. Juni 2024
051136
  • RSECTION 1
  • Stahlbau
  • Spannungsnachweis
    • Stabilitätsnachweis
    • Eurocode 3

Spannungen am wirksamen Querschnitt

Teilen