Digital modellierte Betonfundamente im RFEM 6 Berechnungsmodell
Digital modellierte Betonfundamente im RFEM 6 Berechnungsmodell
2. Oktober 2024
052941
  • RFEM 6
  • Stahlbetonbau

Betonfundamente RFEM 6

Digital modellierte Betonfundamente im RFEM 6 Berechnungsmodell

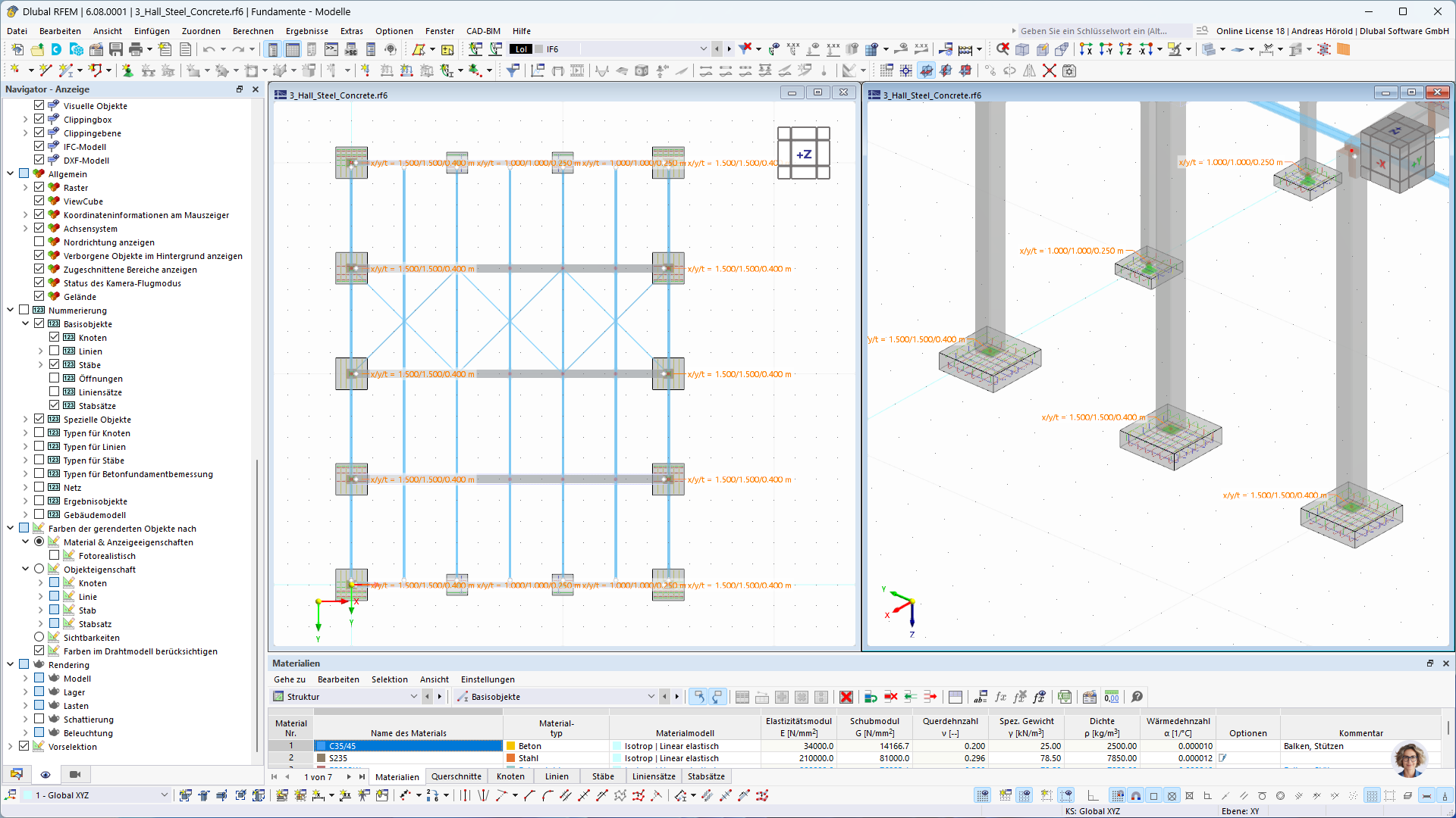
Das Bild zeigt digital modellierte Betonfundamente, die im Rahmen von Berechnungsanalysen unter Einsatz von RFEM 6 konstruiert wurden. Es werden einzelne Bauteilstrukturen des Fundamentes mit klar erkennbaren Konturen dargestellt, um die Lastverteilung und den Betonaufbau zu veranschaulichen.
  • Betonfundamente
  • RFEM 6
  • Fundamentmodell
  • Berechnungsmodell
  • Digitales Engineering
Teilen