Mittellinien von Wänden erzeugen
Mittellinien von Wänden erzeugen
14. November 2024
053828
  • RFEM 6

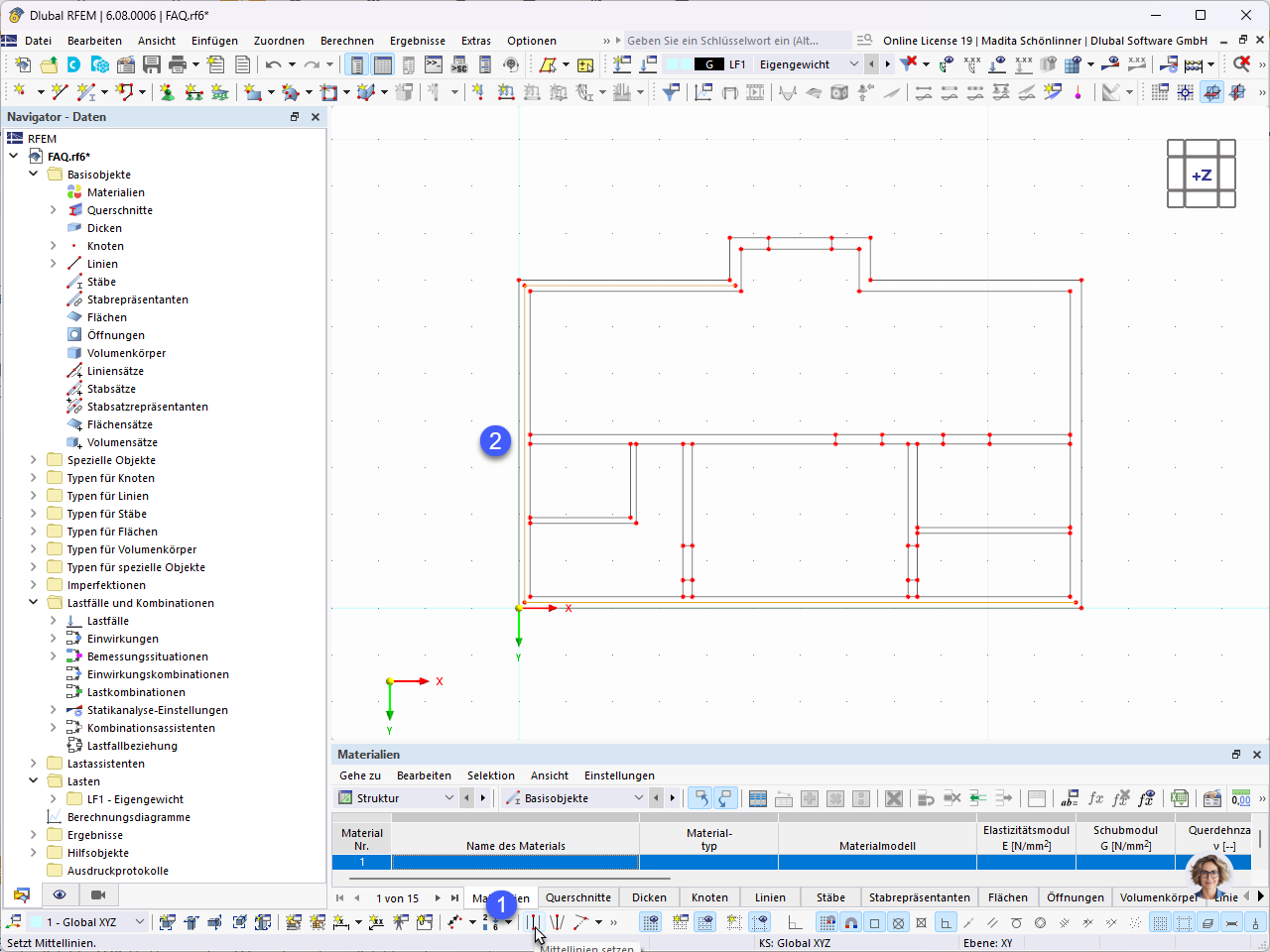
Mittellinien von Wänden erzeugen

In der Abbildung wird die Funktionalität der Software RFEM 6 für die automatische Erzeugung von Wandachsen und Mittellinien gezeigt. Diese Funktionen erleichtern Ingenieuren die effiziente Modellierung und Planung von Bauprojekten, indem sie Zeit sparen und die Genauigkeit der Eingaben erhöhen. Der Prozess der automatischen Generierung ermöglicht eine reibungslose und fehlerfreie Integration von Wandstrukturen in das gesamte Gebäudemodell. Dies ist besonders nützlich für die Optimierung und detaillierte Ausarbeitung von Bauprojekten innerhalb der zivilen Bauplanung.
  • Mittellinie
  • Wandachse
Teilen