FAQ 005629 | Wie kann man die Lagerreaktionen an Linienlagern von Flächen analysieren?
Sind Ergebnisschnitte dabei hilfreich?
FAQ 005629 | Wie kann man die Lagerreaktionen an Linienlagern von Flächen analysieren?
Sind Ergebnisschnitte dabei hilfreich?
24. November 2024
054089
  • RFEM 6
  • Statik und Tragwerksplanung
  • Finite-Elemente-Berechnung

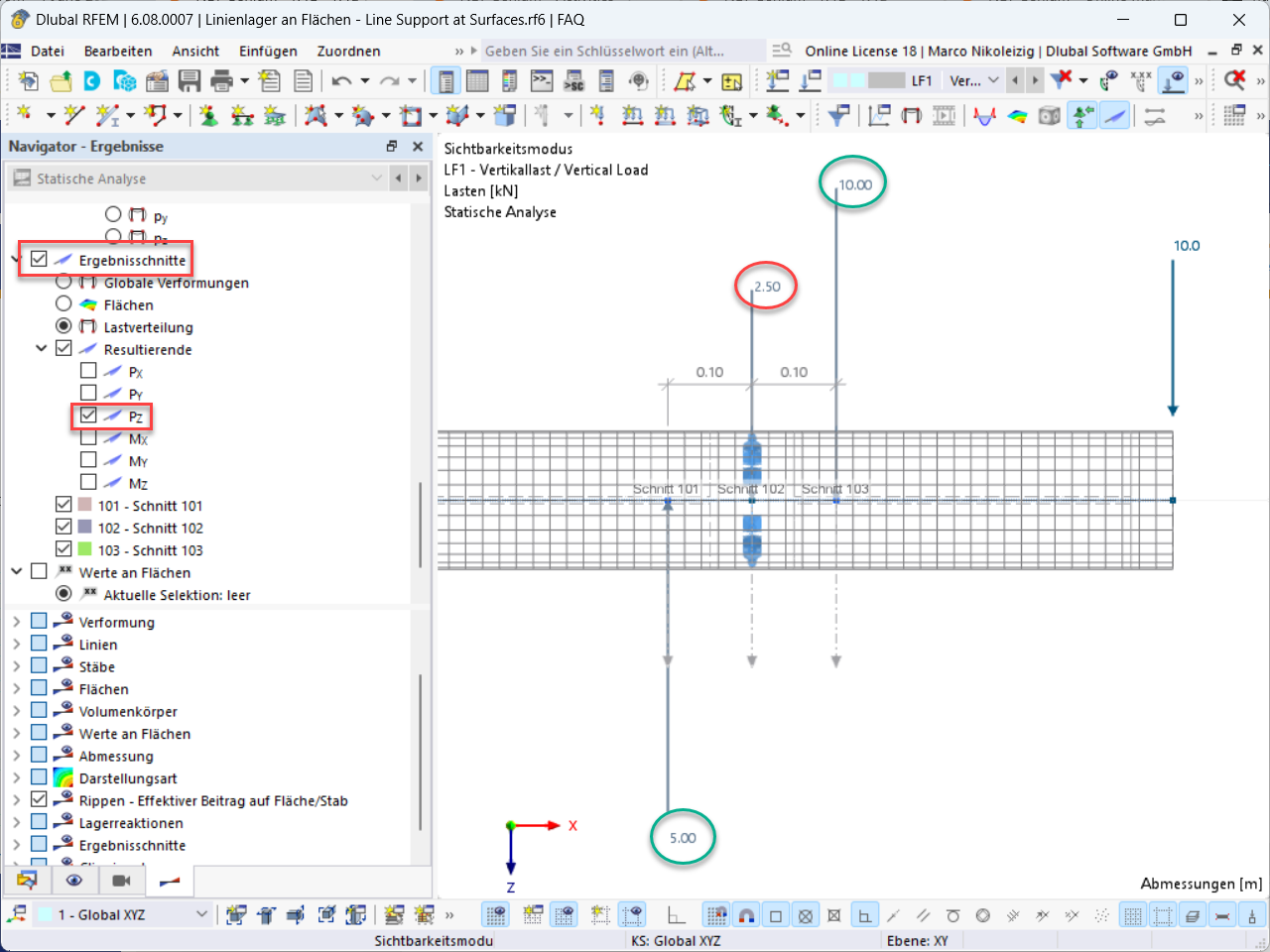
Anzeige der resultierenden Lastverteilung in den Schnitten 101 bis 103

FAQ 005629 | Wie kann man die Lagerreaktionen an Linienlagern von Flächen analysieren? Sind Ergebnisschnitte dabei hilfreich?

  • Linienlager
  • Lagerreaktion
  • Resultierende
  • Lagerkraft
  • Ergebnisschnitt
  • Schnitt
  • Ergebnisstab
  • Flächenmodell
  • Analyse Lagerreaktion
  • Querkraftsprung
  • Lagerlinie
  • Punktlager
  • Ergebnisverlauf
  • Konstante Glättung
  • Infobox
  • Analysemöglichkeit
  • Stabtragwerk
  • Kontrolle Modellierung
  • Einfeldträger
  • Kragarm
  • Rohr
  • Rohrquerschnitt
Teilen