Anzeige der Maske 3.3 für den punktweisen Gebrauchstauglichkeitsnachweis mit prüfbezogenen Parametern
Anzeige der Maske 3.3 für den punktweisen Gebrauchstauglichkeitsnachweis mit prüfbezogenen Parametern
14. Januar 2025
054937
  • RFEM 6

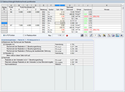
Bild 5.8 Maske 3.3 Gebrauchstauglichkeitsnachweis punktweise

Anzeige der Maske 3.3 für den punktweisen Gebrauchstauglichkeitsnachweis mit prüfbezogenen Parametern

Die Darstellung zeigt eine grafische Benutzeroberfläche zur Durchführung eines punktweisen Gebrauchstauglichkeitsnachweises, gekennzeichnet als Maske 3.3. Es werden einzelne Prüfpunkte und Parameter zur Überwachung von Bauwerksverformungen oder Lastzuständen angezeigt. Die Oberfläche ist Bestandteil eines Prüfprozesses zur Beurteilung der Gebrauchstauglichkeit von Tragwerken.
  • Maske 3.3
  • Gebrauchstauglichkeitsnachweis Punktweise
  • Konstruktionsprüfung
  • Bauwerksanalyse
Teilen