Softwaredialog zeigt Gebrauchstauglichkeitsnachweis Gesamt mit Kennzahlen und Prüfresultaten
Softwaredialog zeigt Gebrauchstauglichkeitsnachweis Gesamt mit Kennzahlen und Prüfresultaten
15. Januar 2025
054972
  • RFEM 6

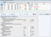
Bild 5.6 Dialog 3.1 Gebrauchstauglichkeitsnachweis Gesamt

Softwaredialog zeigt Gebrauchstauglichkeitsnachweis Gesamt mit Kennzahlen und Prüfresultaten

Das Bild zeigt ein Dialogfenster, in dem der Gebrauchstauglichkeitsnachweis Gesamt dargestellt wird. Es werden verschiedene Kennzahlen und Prüfergebnisse in einer strukturierten Ansicht präsentiert. Technische Informationen sind eingeordnet, um eine Übersicht zum Nachweis der Gebrauchstauglichkeit zu bieten.
  • Gebrauchstauglichkeitsnachweis Gesamt
  • Dialogfenster
  • Interaktives Prüfprotokoll
  • Technische Anzeige
  • Nutzeroberfläche
Teilen