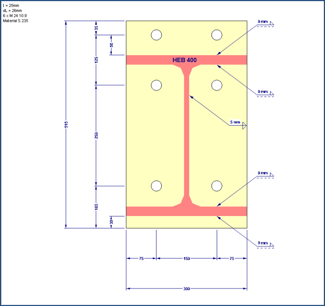
Calculation Example
Parameters for Effective Lengths (Source: [1])
Determination of α-value (Source: [1])
Load-Bearing Capacities of Bolt Rows and Corresponding Lever Arms
Ultimate Limit State in RF-/FRAME-JOINT Pro
Calculation Example
Parameters for Effective Lengths (Source: [1])
Determination of α-value (Source: [1])
Load-Bearing Capacities of Bolt Rows and Corresponding Lever Arms
Ultimate Limit State in RF-/FRAME-JOINT Pro
2024-05-30
009326
  • RFEM 5
  • RSTAB 8
  • RF-FRAME-JOINT Pro 5
    • FRAME-JOINT Pro 8
    • Steel Structures
    • Steel Connections
    • Eurocode 3

Calculation Example

Used in
  • Calculation Example of Rigid End Plate Connection According to EN 1993-1-8
Share
2024-05-30
009327
  • RFEM 5
  • RSTAB 8
  • RF-FRAME-JOINT Pro 5
    • FRAME-JOINT Pro 8
    • Steel Structures
    • Steel Connections
    • Eurocode 3
Parameters for Effective Lengths (Source: [1])
Used in
  • Calculation Example of Rigid End Plate Connection According to EN 1993-1-8
Share
2024-05-30
009328
  • RFEM 5
  • RSTAB 8
  • RF-FRAME-JOINT Pro 5
    • FRAME-JOINT Pro 8
    • Steel Structures
    • Steel Connections
    • Eurocode 3
Determination of α-value (Source: [1])
Used in
  • Calculation Example of Rigid End Plate Connection According to EN 1993-1-8
Share
2024-05-30
009329
  • RFEM 5
  • RSTAB 8
  • RF-FRAME-JOINT Pro 5
    • FRAME-JOINT Pro 8
    • Steel Structures
    • Steel Connections
    • Eurocode 3
Load-Bearing Capacities of Bolt Rows and Corresponding Lever Arms
Used in
  • Calculation Example of Rigid End Plate Connection According to EN 1993-1-8
Share
2024-05-30
009330
  • RFEM 5
  • RSTAB 8
  • RF-FRAME-JOINT Pro 5
    • FRAME-JOINT Pro 8
    • Steel Structures
    • Steel Connections
    • Eurocode 3
Ultimate Limit State in RF-/FRAME-JOINT Pro
Used in
  • Calculation Example of Rigid End Plate Connection According to EN 1993-1-8
Share