Absorbed Shear Force on Wall End and Wall Corner
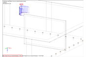
Wall Replaced by Line Load
Shear Force at Critical Perimeter
Resulting Shear Force VEd
Result Diagram in Section: Principal Internal Force vmax, b
Absorbed Shear Force on Wall End and Wall Corner
Wall Replaced by Line Load
Shear Force at Critical Perimeter
Resulting Shear Force VEd
Result Diagram in Section: Principal Internal Force vmax, b
2024-05-30
009818
  • RFEM 5
  • Concrete Structures
  • Eurocode 2

Absorbed Shear Force on Wall End and Wall Corner

Used in
  • Determination of Punching Load on Wall Ends and Wall Corners in RF-PUNCH Pro
Share
2024-05-30
009819
  • RFEM 5
  • Concrete Structures
  • Eurocode 2
Wall Replaced by Line Load
Used in
  • Determination of Punching Load on Wall Ends and Wall Corners in RF-PUNCH Pro
Share
2024-05-30
009820
  • RFEM 5
  • Concrete Structures
  • Eurocode 2
Shear Force at Critical Perimeter
Used in
  • Determination of Punching Load on Wall Ends and Wall Corners in RF-PUNCH Pro
Share
2024-05-30
009821
  • RFEM 5
  • Concrete Structures
  • Eurocode 2
Resulting Shear Force VEd
Used in
  • Determination of Punching Load on Wall Ends and Wall Corners in RF-PUNCH Pro
Share
2024-05-30
009822
  • RFEM 5
  • Concrete Structures
  • Eurocode 2
Result Diagram in Section: Principal Internal Force vmax, b
Used in
  • Determination of Punching Load on Wall Ends and Wall Corners in RF-PUNCH Pro
Share