Forces per Wall
Forces Anchor
Buckling Analysis
Forces per Wall
Forces Anchor
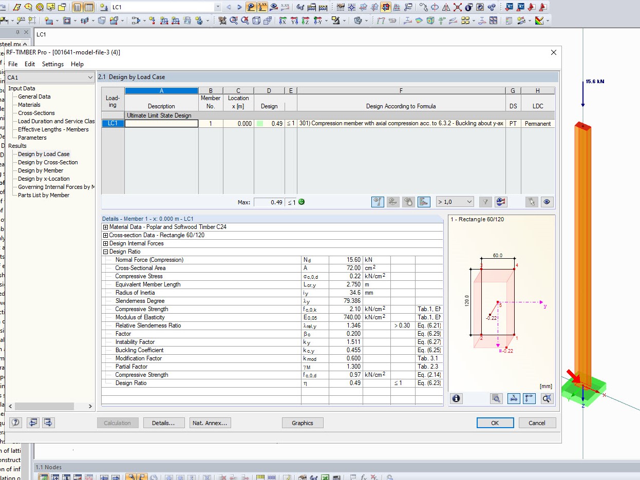
Buckling Analysis
2024-05-30
011716
  • RFEM 5
  • RF-TIMBER AWC 5
  • RF-TIMBER CSA 5
    • RF-TIMBER NBR 5
    • RF-TIMBER Pro 5
    • Timber Structures
    • Structural Analysis & Design
    • Finite Element Analysis
    • Eurocode 5
    • NBR 7190 | 2022-06

Forces per Wall

Used in
  • Calculating Timber Panel Walls | 4. Wall Design
Share
2024-05-30
011717
  • RFEM 5
  • RF-TIMBER AWC 5
  • RF-TIMBER CSA 5
    • RF-TIMBER NBR 5
    • RF-TIMBER Pro 5
    • Timber Structures
    • Structural Analysis & Design
    • Finite Element Analysis
    • Eurocode 5
    • NBR 7190 | 2022-06
Forces Anchor
Used in
  • Calculating Timber Panel Walls | 4. Wall Design
Share
2024-05-30
011718
  • RFEM 5
  • RF-TIMBER AWC 5
  • RF-TIMBER CSA 5
    • RF-TIMBER NBR 5
    • RF-TIMBER Pro 5
    • Timber Structures
    • Structural Analysis & Design
    • Finite Element Analysis
    • Eurocode 5
    • NBR 7190 | 2022-06
Buckling Analysis
Used in
  • Calculating Timber Panel Walls | 4. Wall Design
Share