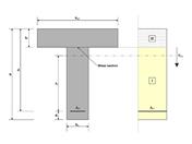
Verification Example 1024 | Shear at Interface Between Concrete Cast
Verification Example 1024 | Shear at Interface Between Concrete Cast
2024-08-13
042002
  • RFEM 6

Verification Example 1024 | Shear at Interface Between Concrete Cast

  • RFEM 6
Used in
  • VE 1024 | Shear at Interface Between Concrete Cast According to DIN EN 1992-1-1
Share