Interface Showcasing Input Data for Concrete Design Using Dlubal Software
Interface Showcasing Input Data for Concrete Design Using Dlubal Software
2024-11-21
054023
  • RFEM 6

Concrete Design: Input Data

Interface Showcasing Input Data for Concrete Design Using Dlubal Software

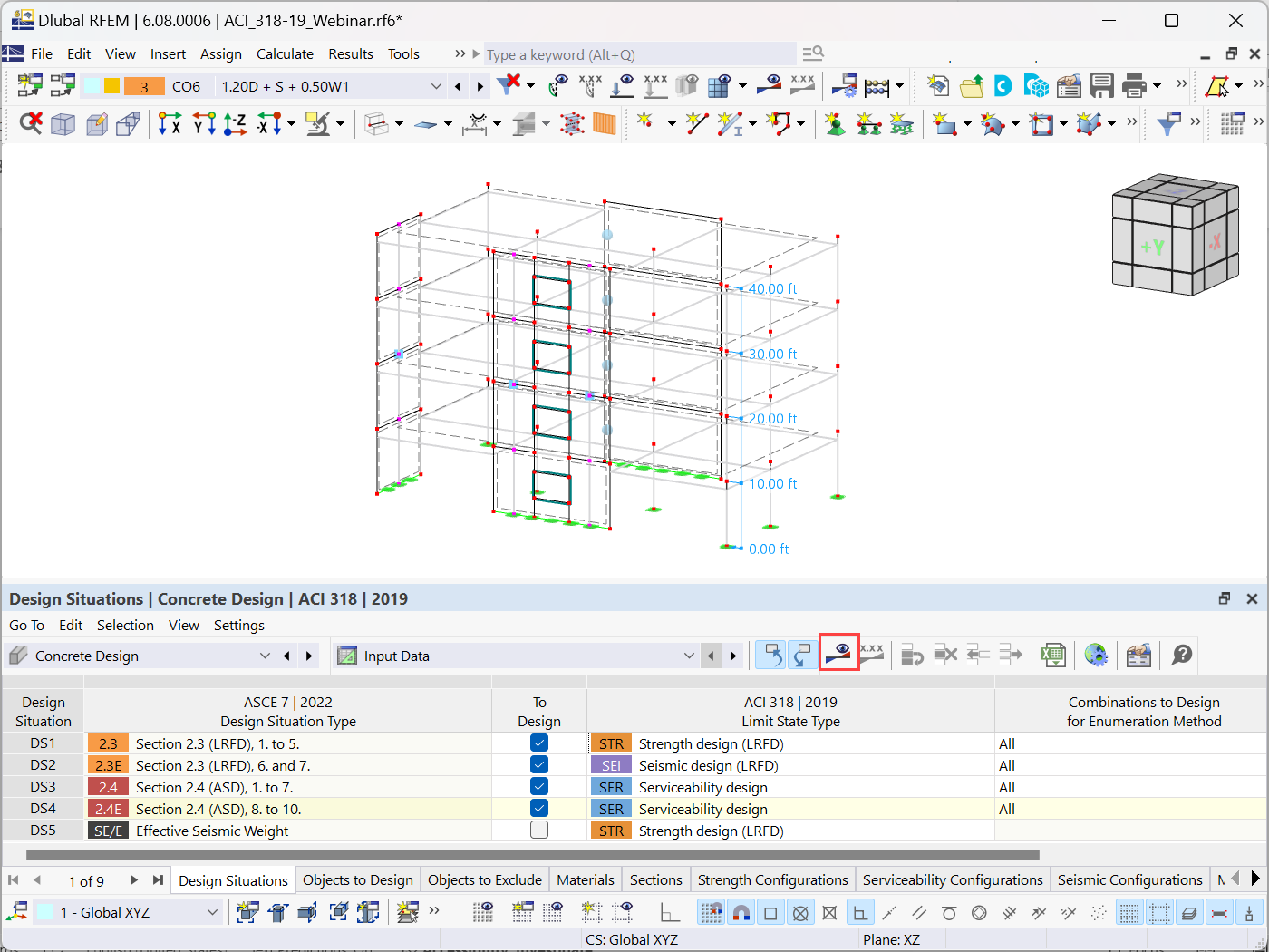
The image presents an interface of Dlubal software focused on concrete design input data. Dlubal software facilitates structural engineers in effectively managing and analyzing concrete design parameters. This specific interface provides users with the ability to input and adjust crucial design data necessary for conducting thorough analyses of concrete structures. By utilizing this software, engineers can efficiently address design challenges, ensuring compliance with relevant standards and enhancing overall structural safety. Its comprehensive features support various engineering tasks, streamlining project workflows and optimizing design outcomes.
  • Concrete Design
  • Structural Engineering
  • Dlubal Software
  • Engineering Software
  • Civil Engineering Tools
Used in
  • Concrete Shear Wall Design in RFEM 6: Step-by-Step Guide
Share