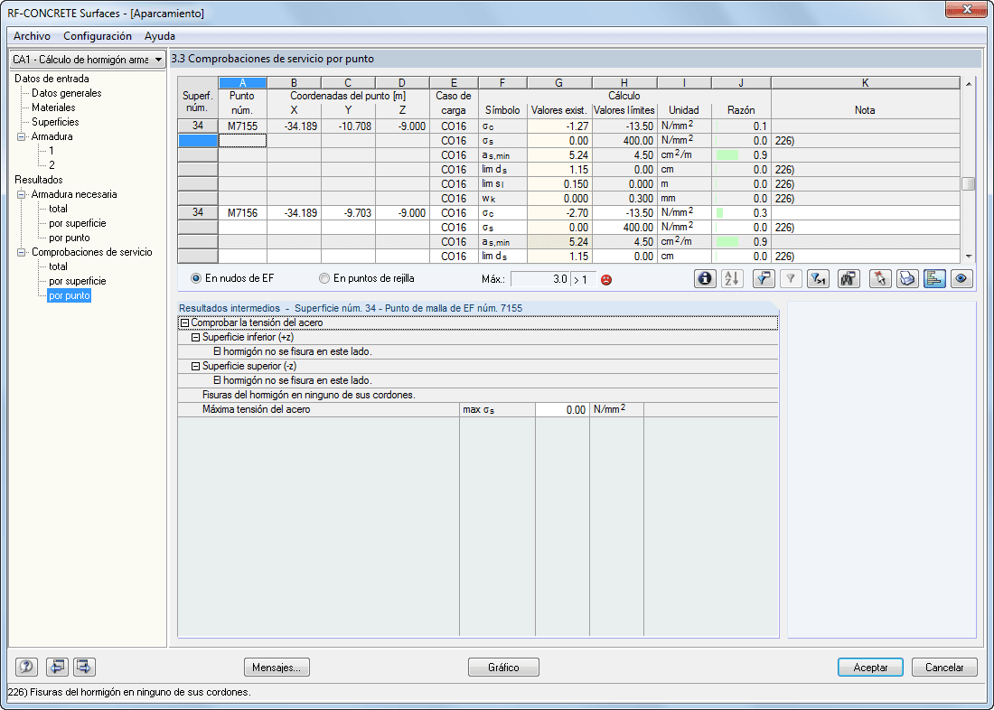
RF-BETON Flächen - 3.3 Gebrauchstauglichkeitsnachweis punktweise
RF-BETON Flächen - 3.3 Gebrauchstauglichkeitsnachweis punktweise
09-03-2024
000412

RF-BETON Flächen - 3.3 Gebrauchstauglichkeitsnachweis punktweise

Compartir