Guía con alas
Rodamientos guía laterales
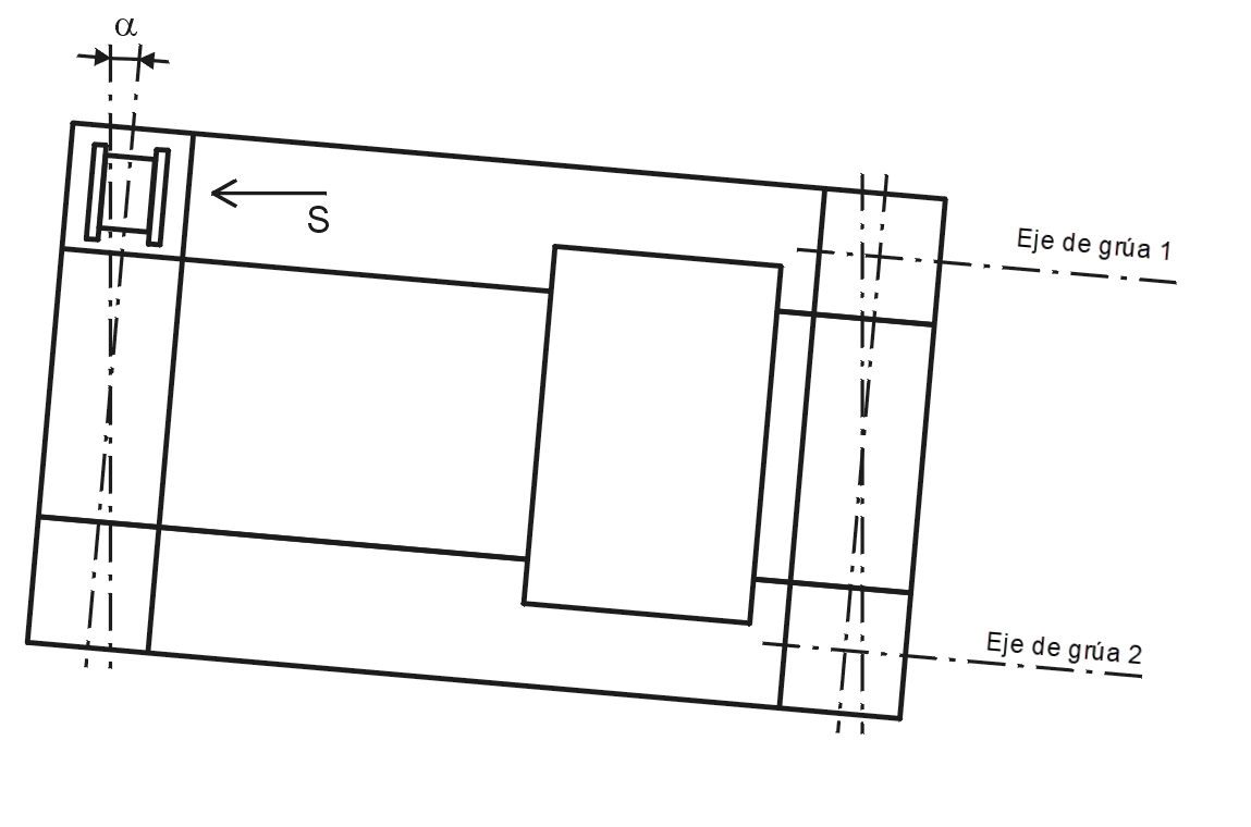
Ángulo de deslizamiento α
Combinación de fuerzas de desviación para diferentes sistemas de conducción y guía
Detalle de una ficha de datos de una grúa de ABUS Kransysteme
Cargas horizontales de sesgo y definición en CRANEWAY
Guía con alas
Rodamientos guía laterales
Ángulo de deslizamiento α
Combinación de fuerzas de desviación para diferentes sistemas de conducción y guía
Detalle de una ficha de datos de una grúa de ABUS Kransysteme
Cargas horizontales de sesgo y definición en CRANEWAY
30-05-2024
008966
  • CRANEWAY 8
  • Grúas y caminos de rodadura para grúas
  • Estructuras de acero
    • Plantas de producción y procesos
    • Análisis y dimensionamiento de estructuras
    • Análisis de estabilidad
    • Eurocode 3
    • Eurocode 1

Guía con alas

Usado en
  • Cargas de viga de carril de sesgo de puentes grúa
Compartir
30-05-2024
008967
  • CRANEWAY 8
  • Grúas y caminos de rodadura para grúas
  • Estructuras de acero
    • Plantas de producción y procesos
    • Análisis y dimensionamiento de estructuras
    • Análisis de estabilidad
    • Eurocode 3
    • Eurocode 1
Rodamientos guía laterales
Usado en
  • Cargas de viga de carril de sesgo de puentes grúa
Compartir
30-05-2024
008968
  • CRANEWAY 8
  • Grúas y caminos de rodadura para grúas
  • Estructuras de acero
    • Plantas de producción y procesos
    • Análisis y dimensionamiento de estructuras
    • Análisis de estabilidad
    • Eurocode 3
    • Eurocode 1
Schräglaufwinkel α
Ángulo de deslizamiento α

Usado en
  • Cargas de viga de carril de sesgo de puentes grúa
Compartir
30-05-2024
008969
  • CRANEWAY 8
  • Grúas y caminos de rodadura para grúas
  • Estructuras de acero
    • Plantas de producción y procesos
    • Análisis y dimensionamiento de estructuras
    • Análisis de estabilidad
    • Eurocode 3
    • Eurocode 1
Combinación de fuerzas de sesgo para diferentes sistemas de propulsión y guiado
Combinación de fuerzas de desviación para diferentes sistemas de conducción y guía

Usado en
  • Cargas de viga de carril de sesgo de puentes grúa
Compartir
30-05-2024
008970
  • CRANEWAY 8
  • Grúas y caminos de rodadura para grúas
  • Estructuras de acero
    • Plantas de producción y procesos
    • Análisis y dimensionamiento de estructuras
    • Análisis de estabilidad
    • Eurocode 3
    • Eurocode 1
Ausschnitt eines Krandatenblattes der Firma ABUS Kransysteme
Detalle de una ficha de datos de una grúa de ABUS Kransysteme

Usado en
  • Cargas de viga de carril de sesgo de puentes grúa
Compartir
30-05-2024
008971
  • CRANEWAY 8
  • Grúas y caminos de rodadura para grúas
  • Estructuras de acero
    • Plantas de producción y procesos
    • Análisis y dimensionamiento de estructuras
    • Análisis de estabilidad
    • Eurocode 3
    • Eurocode 1
Cargas horizontales de sesgo y definición en CRANEWAY
Usado en
  • Cargas de viga de carril de sesgo de puentes grúa
Compartir