Fuerzas por muro
Fuerzas de anclaje
Análisis de pandeo
Fuerzas por muro
Fuerzas de anclaje
Análisis de pandeo
30-05-2024
011716
  • RFEM 5
  • RF-TIMBER AWC 5
  • RF-TIMBER CSA 5
    • RF-TIMBER NBR 5
    • RF-TIMBER Pro 5
    • Estructuras de madera
    • Análisis y dimensionamiento de estructuras
    • Análisis por elementos finitos
    • Eurocode 5
    • NBR 7190 | 2022-06

Fuerzas por muro

Usado en
  • Cálculo de muros de paneles de madera | 4. Diseño de muro
Compartir
30-05-2024
011717
  • RFEM 5
  • RF-TIMBER AWC 5
  • RF-TIMBER CSA 5
    • RF-TIMBER NBR 5
    • RF-TIMBER Pro 5
    • Estructuras de madera
    • Análisis y dimensionamiento de estructuras
    • Análisis por elementos finitos
    • Eurocode 5
    • NBR 7190 | 2022-06
Fuerzas de anclaje
Usado en
  • Cálculo de muros de paneles de madera | 4. Diseño de muro
Compartir
30-05-2024
011718
  • RFEM 5
  • RF-TIMBER AWC 5
  • RF-TIMBER CSA 5
    • RF-TIMBER NBR 5
    • RF-TIMBER Pro 5
    • Estructuras de madera
    • Análisis y dimensionamiento de estructuras
    • Análisis por elementos finitos
    • Eurocode 5
    • NBR 7190 | 2022-06
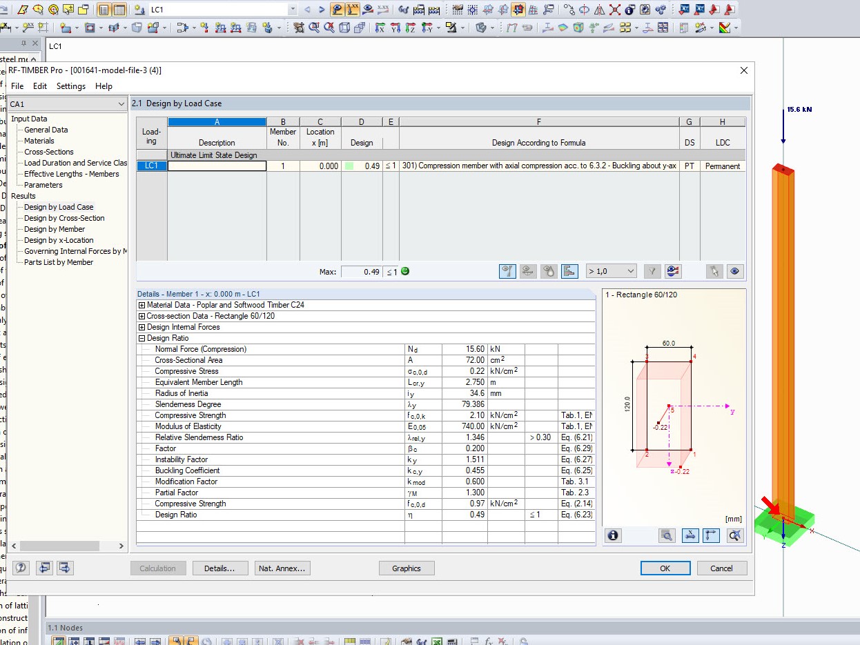
Análisis de pandeo
Usado en
  • Cálculo de muros de paneles de madera | 4. Diseño de muro
Compartir