Deformaciones de superficies de madera contralaminada
Tensiones en la superficie de madera contralaminada
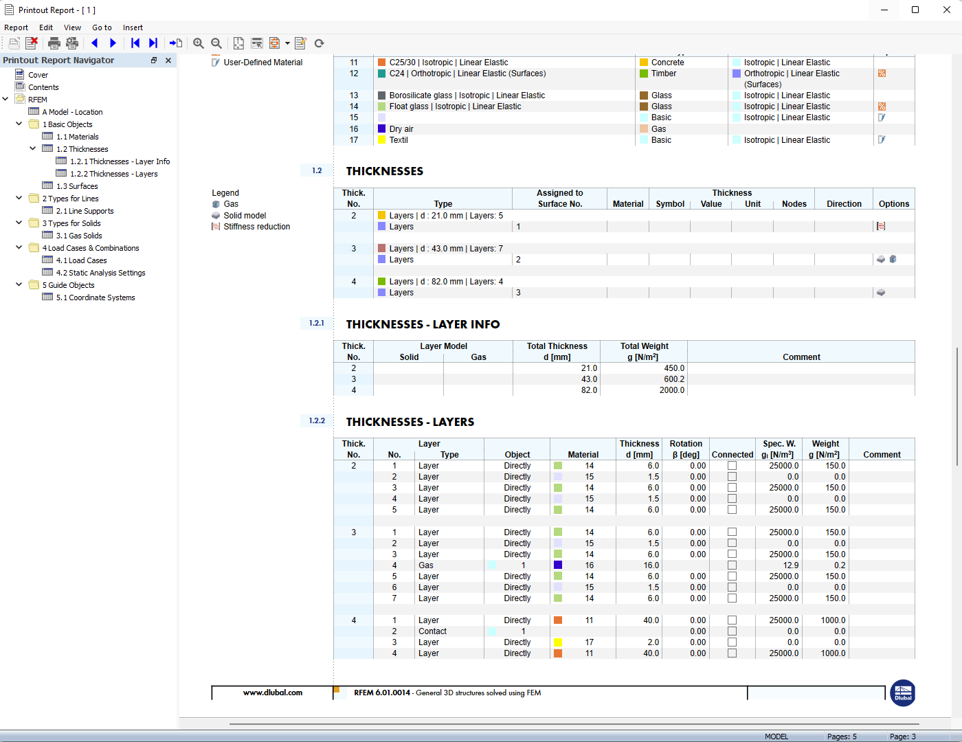
Definición de capa en el informe
Gráfico de la estructura de capas en el informe
Deformaciones de superficies de madera contralaminada
Tensiones en la superficie de madera contralaminada
Definición de capa en el informe
Gráfico de la estructura de capas en el informe
30-05-2024
028185
  • Estructuras laminadas y tipo sándwich

Deformaciones de superficies de madera contralaminada

Usado en
  • Superficies multicapa | Resultados
Compartir
09-03-2024
028186
  • Estructuras laminadas y tipo sándwich
Tensiones en la superficie de madera contralaminada
Compartir
09-03-2024
028192
  • Estructuras laminadas y tipo sándwich
Definición de capa en el informe
Compartir
05-08-2024
028193
  • Estructuras laminadas y tipo sándwich
Gráfico de la estructura de capas en el informe
Compartir