Interfaz de presentación de datos de entrada para el diseño de hormigón utilizando el software de Dlubal
Interfaz de presentación de datos de entrada para el diseño de hormigón utilizando el software de Dlubal
21-11-2024
054023
  • RFEM 6

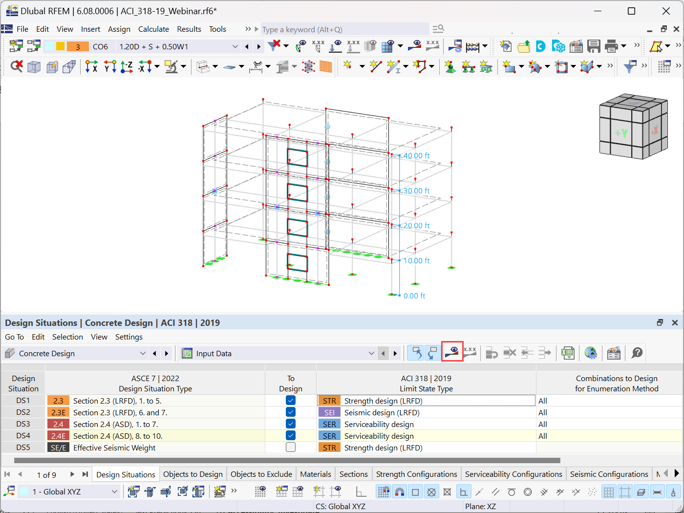
Diseño de hormigón: datos de entrada

Interfaz de presentación de datos de entrada para el diseño de hormigón utilizando el software de Dlubal

La imagen presenta una interfaz del software Dlubal centrada en los datos de entrada del diseño de hormigón (concreto). El software Dlubal facilita a los ingenieros estructurales la gestión y el análisis efectivos de los parámetros de diseño de hormigón (concreto). Esta interfaz específica proporciona a los usuarios la capacidad de ingresar y ajustar datos de diseño cruciales necesarios para realizar análisis exhaustivos de estructuras. Al utilizar este software, los ingenieros pueden abordar eficientemente los desafíos de diseño, asegurando el cumplimiento con las normas pertinentes y mejorando la seguridad estructural general. Sus completas características apoyan diversas tareas de ingeniería, agilizando los flujos de trabajo del proyecto y optimizando los resultados del diseño.
  • Diseño de hormigón
  • Ingeniería estructural
  • Dlubal Software
  • Software de ingeniería
  • Herramientas de ingeniería civil
Usado en
  • Cálculo de muros de cortante de hormigón en RFEM 6: Guía paso a paso
Compartir