FAQ 005629 | Cómo analizar las reacciones del apoyo en apoyos en línea de superficies. ¿Son útiles las secciones de resultados?
FAQ 005629 | Cómo analizar las reacciones del apoyo en apoyos en línea de superficies. ¿Son útiles las secciones de resultados?
24-11-2024
054089
  • RFEM 6
  • Análisis y dimensionamiento de estructuras
  • Análisis por elementos finitos

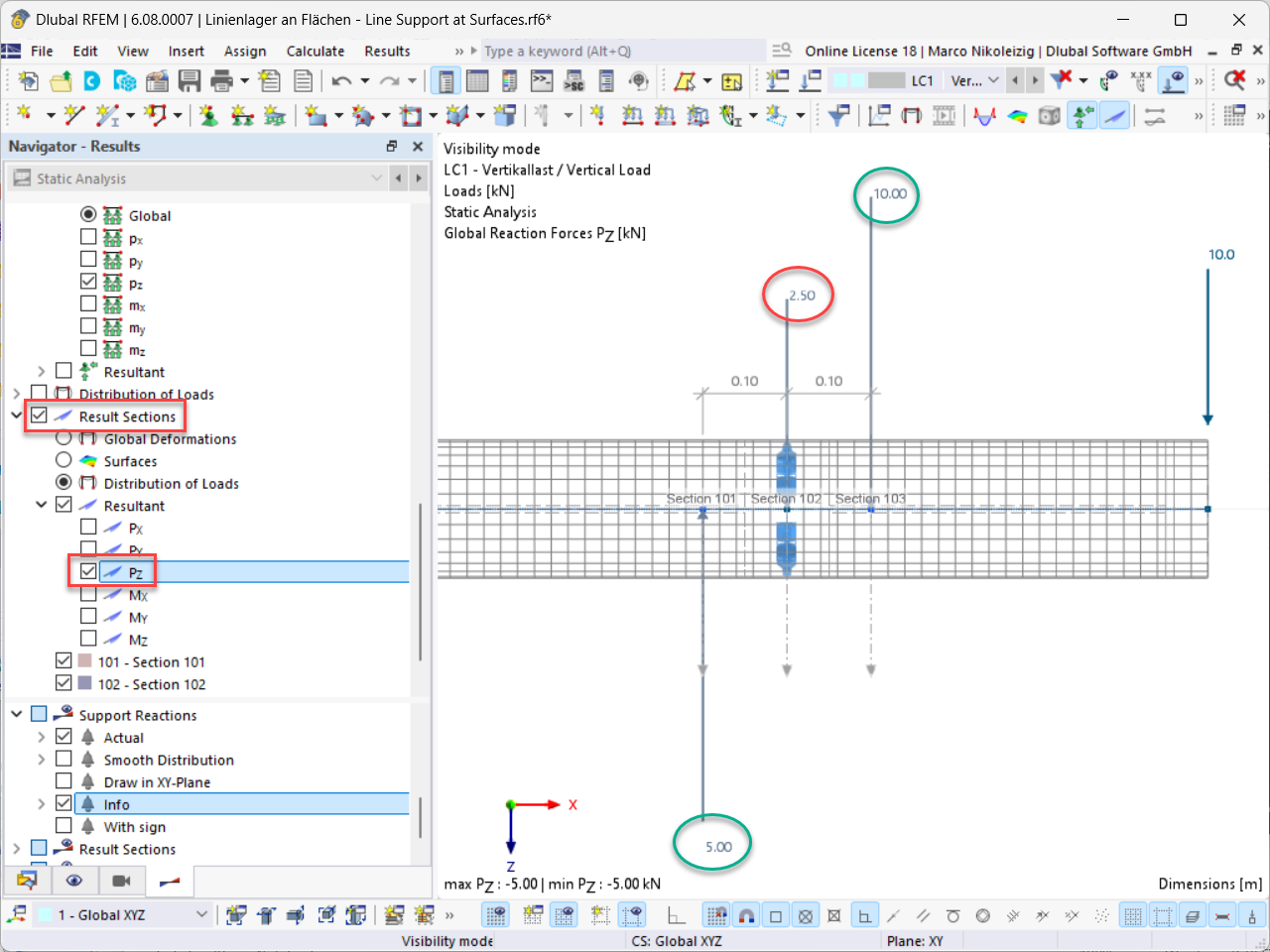
Representación de la distribución de cargas resultantes en las secciones 101 hasta 103

FAQ 005629 | Cómo analizar las reacciones del apoyo en apoyos en línea de superficies. ¿Son útiles las secciones de resultados?

  • Apoyo en línea
  • Reacción del apoyo
  • Resultante
  • Fuerza en apoyo
  • Sección de resultados
  • Sección
  • Tabla de resultados
  • Modelo de superficie
  • Análisis de reacción del apoyo
  • Salto de esfuerzo cortante
  • Línea del apoyo
  • Apoyo puntual
  • Comportamiento de resultados
  • Suavizado constante
  • Cuadro de información
  • Opción de análisis
  • Estructura aporticada
  • Control de modelado
  • Viga de un solo vano
  • Voladizo
  • Tubo
  • Sección de tubo
Compartir