Ventana de diálogo que muestra la configuración de longitud eficaz para análisis de estabilidad de barras de aluminio en RFEM 6
Ventana de diálogo que muestra la configuración de longitud eficaz para análisis de estabilidad de barras de aluminio en RFEM 6
24-07-2025
057940
  • RFEM 6

Definición de longitud eficaz para barras de aluminio en RFEM 6

Ventana de diálogo que muestra la configuración de longitud eficaz para análisis de estabilidad de barras de aluminio en RFEM 6

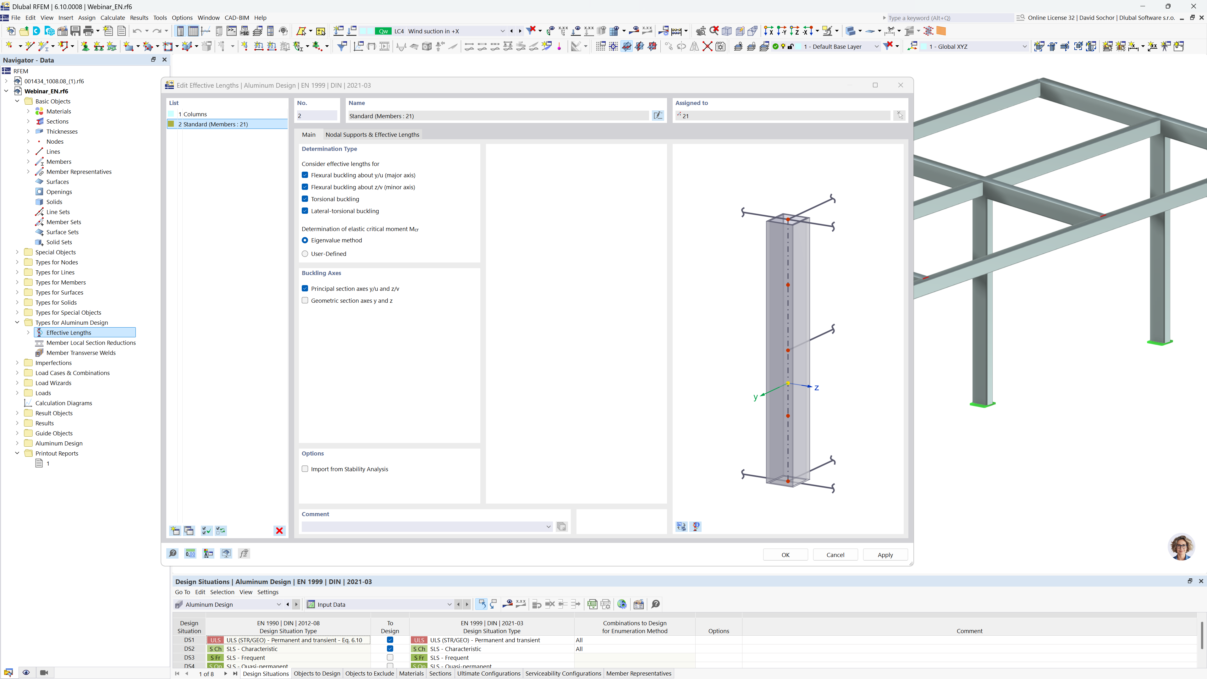
La ventana de diálogo en RFEM 6 permite definir longitudes eficaces para las barras de aluminio, cruciales para el análisis de estabilidad. Incluye campos de entrada para apoyos nodales y factores de longitudes eficaces. El complemento Cálculo de aluminio requiere estas definiciones para asegurar diseños fiables. La representación gráfica en la ventana de trabajo ayuda a verificar la precisión de los datos de entrada.
  • Longitud eficaz
  • Cálculo de aluminio
  • Estabilidad
  • RFEM 6
  • Apoyos en nudo
Compartir