Évaluation du premier mode propre
Évaluation du premier mode propre
30.05.2024
008826
  • RFEM 5
  • RF-DYNAM Pro | Vibrations naturelles 5
  • RF-DYNAM Pro | Charges équivalentes 5
    • Structures en béton
    • Analyse aux éléments finis
    • Analyses dynamiques et sismiques
    • Eurocode 8
    • ASCE 7

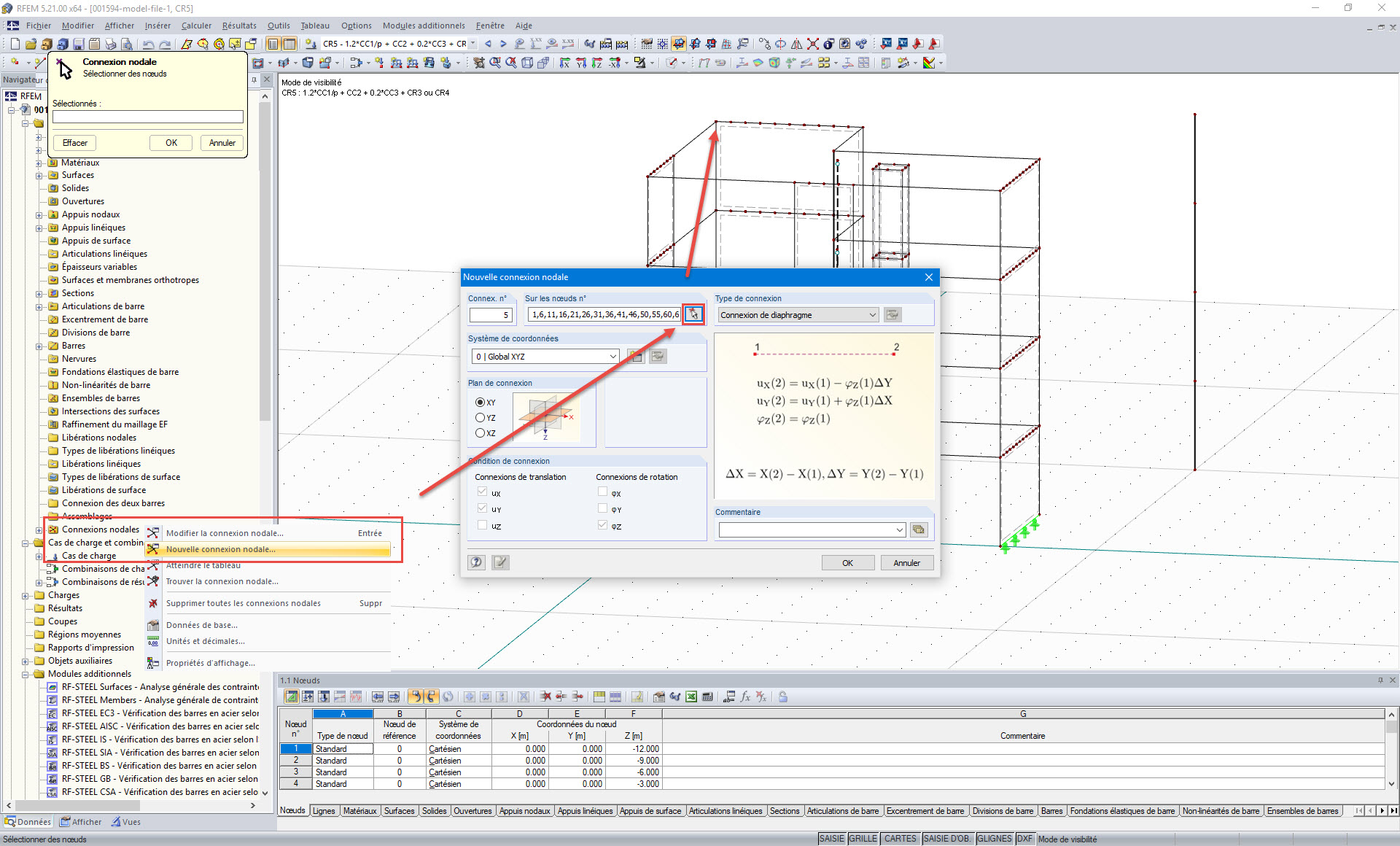
Définition des contraintes nodales

Évaluation du premier mode propre

Utilisé dans
  • Détermination des charges sismiques étage par étage à l'aide de connexions nodales
Partager