Module additionnel - Entrée de la structure à partir du modèle
  • Visionneuse 3D
  • Visionneuse 3D | Babylon
  • Réalité virtuelle
Module additionnel - Entrée de la structure à partir du modèle
30.05.2024
019516
  • RFEM 5
  • RSTAB 8
  • Acier sur bois 8
    • RF-JOINTS Timber | Steel to Timber 5
    • Structures bois
    • Assemblages d'une structure bois
    • Eurocode 5

Module additionnel - Entrée de la structure à partir du modèle

Utilisé dans
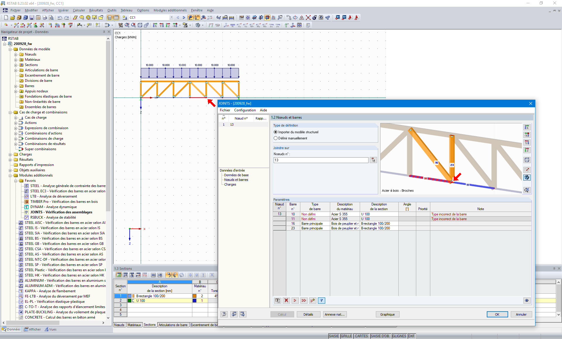
  • Vérification de l'assemblage des diagonales
Modèle 3D
En savoir plus sur le modèle 3D
  • Modélisation avec RFEM 5 | 006 Poutre treillis
Spécifications
Nombre de nœuds 27
Nombre de lignes 48
Nombre de barres 48
Nombre de cas de charge 1
Poids total 0,363 t
Dimensions (métrique) 6,288 x 0,288 x 4,144 m
Dimensions (impériales) 20.63 x 0.94 x 13.6 feet
Version du logiciel 5.21.01
Partager