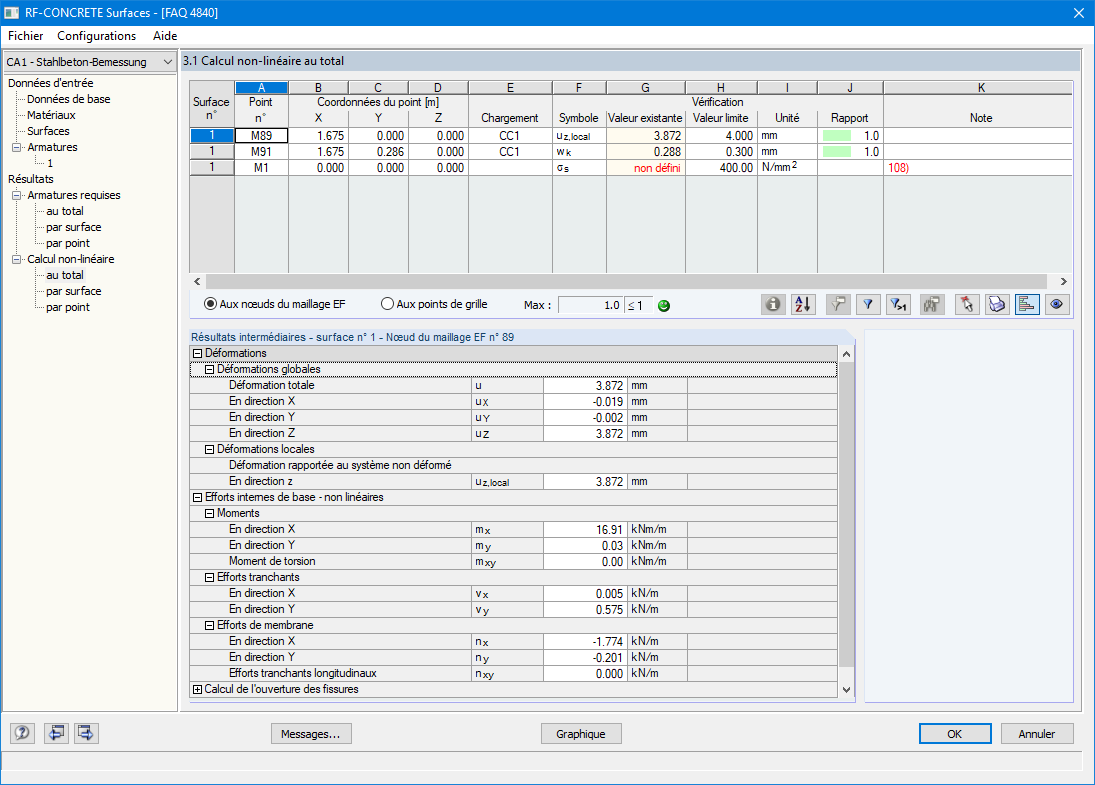
Flèche
Flèche
30.05.2024
019685
  • RF-CONCRETE 5
  • Structures en béton
  • Eurocode 2

Flèche

Utilisé dans
  • Augmentation automatique des armatures pour l’analyse des déformations
Partager