Représentation graphique de la distribution des contraintes et des déformations dans la section béton, y compris l’armature et l’effet de charge.
Visualisation des contraintes et déformations dans les sections en béton sous l’effet des charges
Affichage graphique pour l’analyse des contraintes et déformations dans les sections en béton et les armatures sous charges
Représentation 3D des contraintes de section dans les armatures en béton sous charge.
Représentation graphique de la distribution des contraintes et des déformations dans la section béton, y compris l’armature et l’effet de charge.
Visualisation des contraintes et déformations dans les sections en béton sous l’effet des charges
Affichage graphique pour l’analyse des contraintes et déformations dans les sections en béton et les armatures sous charges
Représentation 3D des contraintes de section dans les armatures en béton sous charge.
30.05.2024
027046
  • Vérification du béton pour RFEM 6
  • Vérification du béton pour RSTAB 9
  • Structures en béton

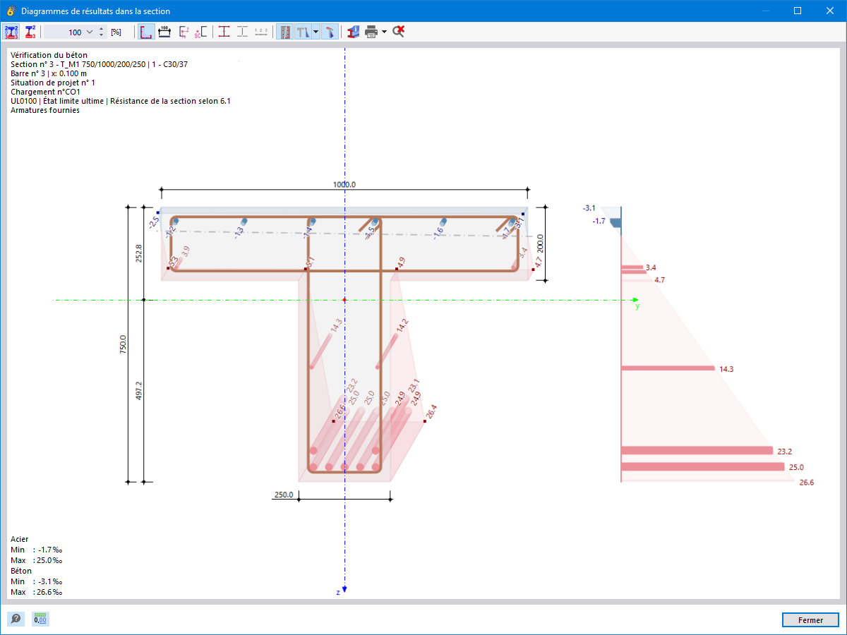
Contraintes existantes sous l’effet de la charge

Représentation graphique de la distribution des contraintes et des déformations dans la section béton, y compris l’armature et l’effet de charge.

L’image montre une représentation graphique des contraintes et déformations de sections dans une pièce en béton. Elle illustre les contraintes et déformations actuelles de la section en béton et des armatures longitudinales sous l’effet de charges. Les contraintes sont visibles à la fois dans une image de contrainte en 3D et dans un graphique 2D. Cette représentation aide à l’analyse dans l’arborescence des résultats de vérification, afin d’évaluer les effets structuraux sous des valeurs limites de section.
  • Afficher les tensions de section
  • Visualiser la vérification du béton
  • Expliquer la distribution des contraintes et des déformations
  • Béton armé
  • Béton
  • Vérification
Utilisé dans
  • Vérification du béton | Affichage graphique des contraintes de section
Partager
24.03.2025
027048
  • Vérification du béton pour RFEM 6
  • Vérification du béton pour RSTAB 9
  • Structures en béton
Contraintes dans les armatures et la section de béton
Visualisation des contraintes et déformations dans les sections en béton sous l’effet des charges

L’image montre la représentation graphique des contraintes et déformations dans une section en béton ainsi que dans les barres d’armature. Les contraintes sont illustrées dans une vue 3D ou une graphique 2D. Les contraintes et les déformations sont représentées avec des armatures longitudinales sous différentes charges. La représentation s’adapte aux paramètres sélectionnés dans l’arbre de résultats des détails de vérification.
  • Analyse de section en béton
  • Contraintes des armatures
  • Affichage graphique des contraintes
  • Distribution tridimensionnelle des contraintes
  • Contraintes graphiques 2D
  • Béton armé
  • Béton
  • Vérification
Partager
24.03.2025
027049
  • Vérification du béton pour RFEM 6
  • Vérification du béton pour RSTAB 9
  • Structures en béton
Approche des souches sous les efforts de limites
Affichage graphique pour l’analyse des contraintes et déformations dans les sections en béton et les armatures sous charges

L’image montre un résultat graphique détaillé des contraintes de section dans le béton sous effort limites. La distribution des contraintes et des déformations dans la section en béton ainsi que dans l’armature longitudinale est représentée. La représentation visuelle offre à la fois des contours de contraintes en 3D et des graphiques 2D pour une analyse détaillée. Ces résultats graphiques servent à évaluer les contraintes et déformations sous différentes conditions de charge.
  • Afficher les contraintes dans la section
  • Analyser les déformations et contraintes
  • Charges de section en béton
  • Représentations graphique
  • Distribution des contraintes dans les armatures
  • Béton armé
  • Béton
  • Vérification
Partager
24.03.2025
027050
  • Vérification du béton pour RFEM 6
  • Vérification du béton pour RSTAB 9
  • Structures en béton
Déformations existantes dans les barres d’armature et section de béton sous l’effet de la charge
Représentation 3D des contraintes de section dans les armatures en béton sous charge.

L’image montre la distribution des contraintes et déformations dans la section en béton et les barres d’armature sous l’effet des charges. On propose une vue en 3D des contraintes ainsi qu’une représentation en 2D pour évaluer visuellement les résultats. La distribution des contraintes dans les barres d’armature est un aspect essentiel pour garantir la capacité portante de la structure conçue. Les représentations graphiques permettent une analyse complète des sollicitations des matériaux.
  • Analyser les contraintes de section
  • Contrainte dans les barres d’armature
  • Vérification du béton
  • Calcul représentation graphique
  • Vérification des charges
  • Béton armé
  • Béton
  • Vérification
Partager