Fondations en béton modélisées numériquement dans le modèle de calcul RFEM 6
Fondations en béton modélisées numériquement dans le modèle de calcul RFEM 6
02.10.2024
052941
  • RFEM 6
  • Structures en béton

Fondations en béton RFEM 6

Fondations en béton modélisées numériquement dans le modèle de calcul RFEM 6

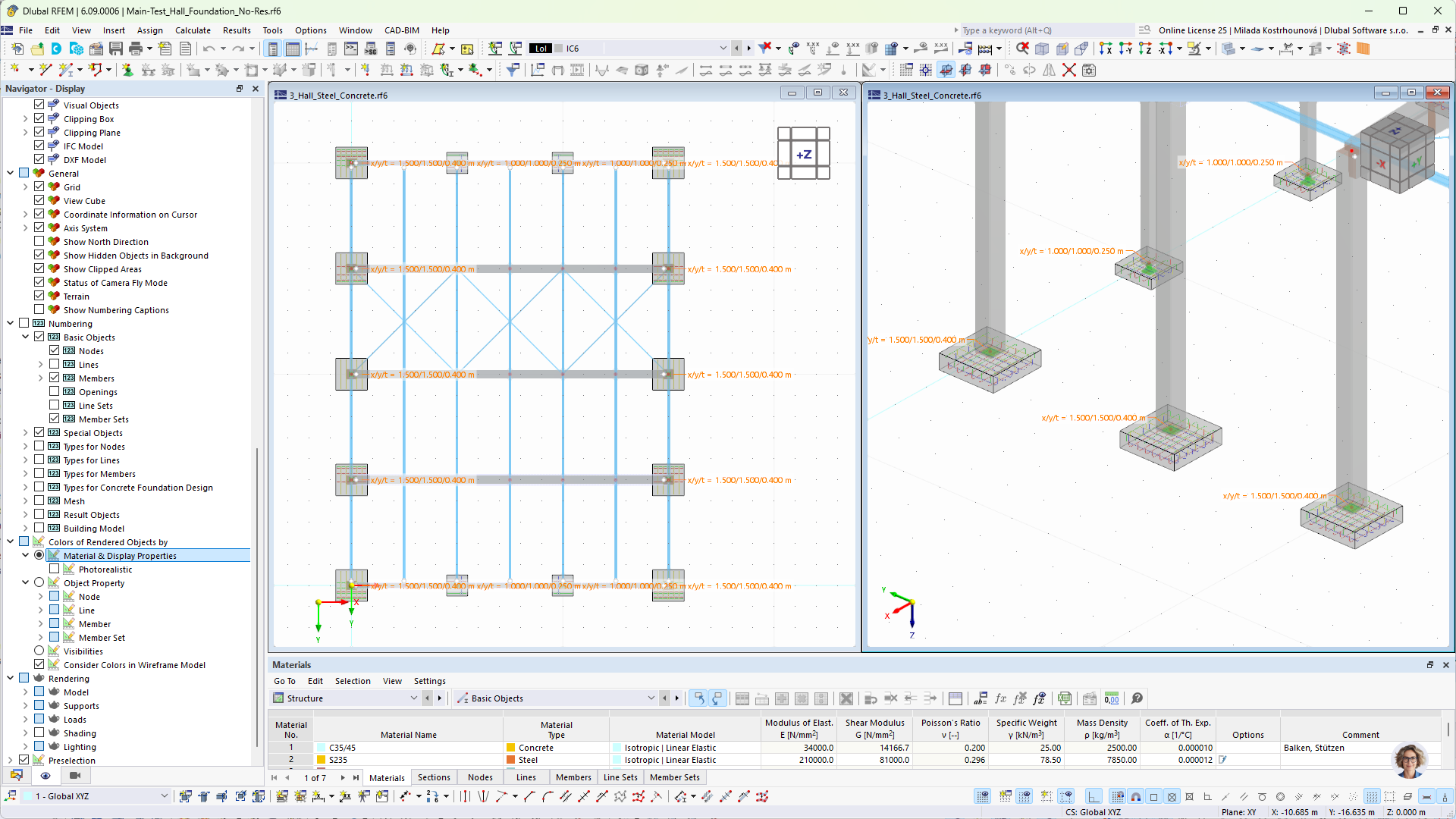
L’image montre des fondations en béton modélisées numériquement, construites dans le cadre d’analyses calculées avec RFEM 6. Les structures de composants individuels des fondations sont représentées avec des contours clairement visibles, pour illustrer la distribution des charges et la structure en béton.
  • Fondations en béton
  • RFEM 6
  • Modèle de fondation
  • Modèle de calcul
  • Ingénierie numérique
Partager