FAQ 005629 | Comment analyser les réactions d’appui sur les appuis linéiques des surfaces ?
Les coupes de résultats sont-elles utiles dans ce cas ?
FAQ 005629 | Comment analyser les réactions d’appui sur les appuis linéiques des surfaces ?
Les coupes de résultats sont-elles utiles dans ce cas ?
24.11.2024
054089
  • RFEM 6
  • Conception et calcul de structure
  • Analyse aux éléments finis

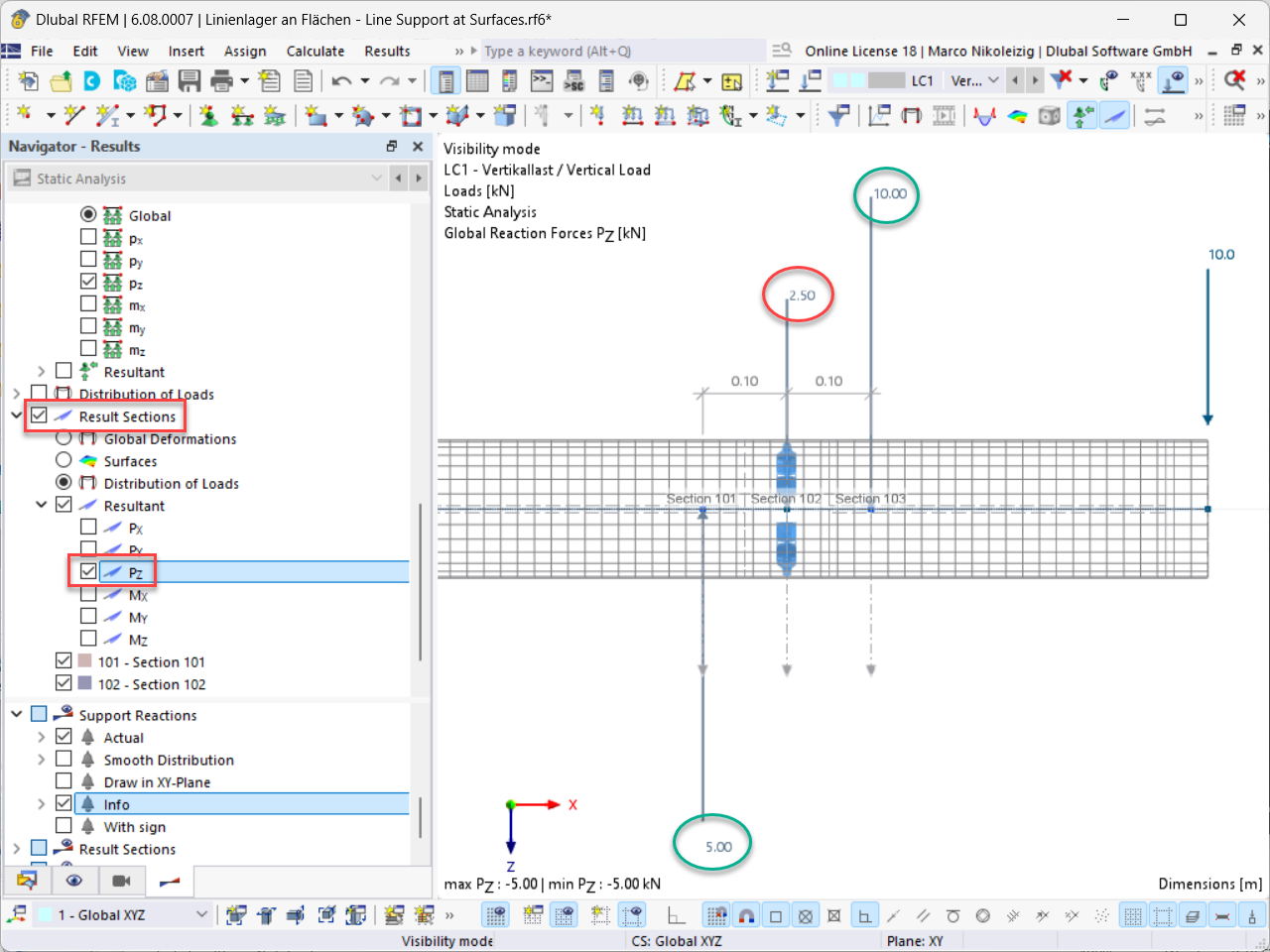
Affichage de la distribution de charge résultante dans les sections 101 à 103

FAQ 005629 | Comment analyser les réactions d’appui sur les appuis linéiques des surfaces ? Les coupes de résultats sont-elles utiles dans ce cas ?

  • Appui linéique
  • Réaction d’appui
  • Résultante
  • Force d’appui
  • Coupe de résultat
  • Coupe
  • Poutre résultante
  • Modèle surfacique
  • Analyse de la réaction d’appui
  • Saut d’effort tranchant
  • Ligne d’appui
  • Appui ponctuel
  • Diagramme de résultat
  • Lissage uniforme
  • Info-bulle
  • Possibilité d’analyse
  • Structure filaire
  • Contrôle de la modélisation
  • Poutre à une travée
  • Porte-à-faux
  • Tube
  • Section de tube
Partager