Rénovation du siège d’INAIL à Ancône avec des espaces modernes de balnéothérapie et un design durable.
  • Visionneuse 3D
  • Visionneuse 3D | Babylon
  • Réalité virtuelle
Rénovation du siège d’INAIL à Ancône avec des espaces modernes de balnéothérapie et un design durable.
28.02.2025
055594
  • RFEM 6
  • Structures en béton
  • Structures en acier
    • Conception et calcul de structure
    • Analyse des contraintes
    • Analyse aux éléments finis

Siège d’INAIL à Ancône

Rénovation du siège d’INAIL à Ancône avec des espaces modernes de balnéothérapie et un design durable.

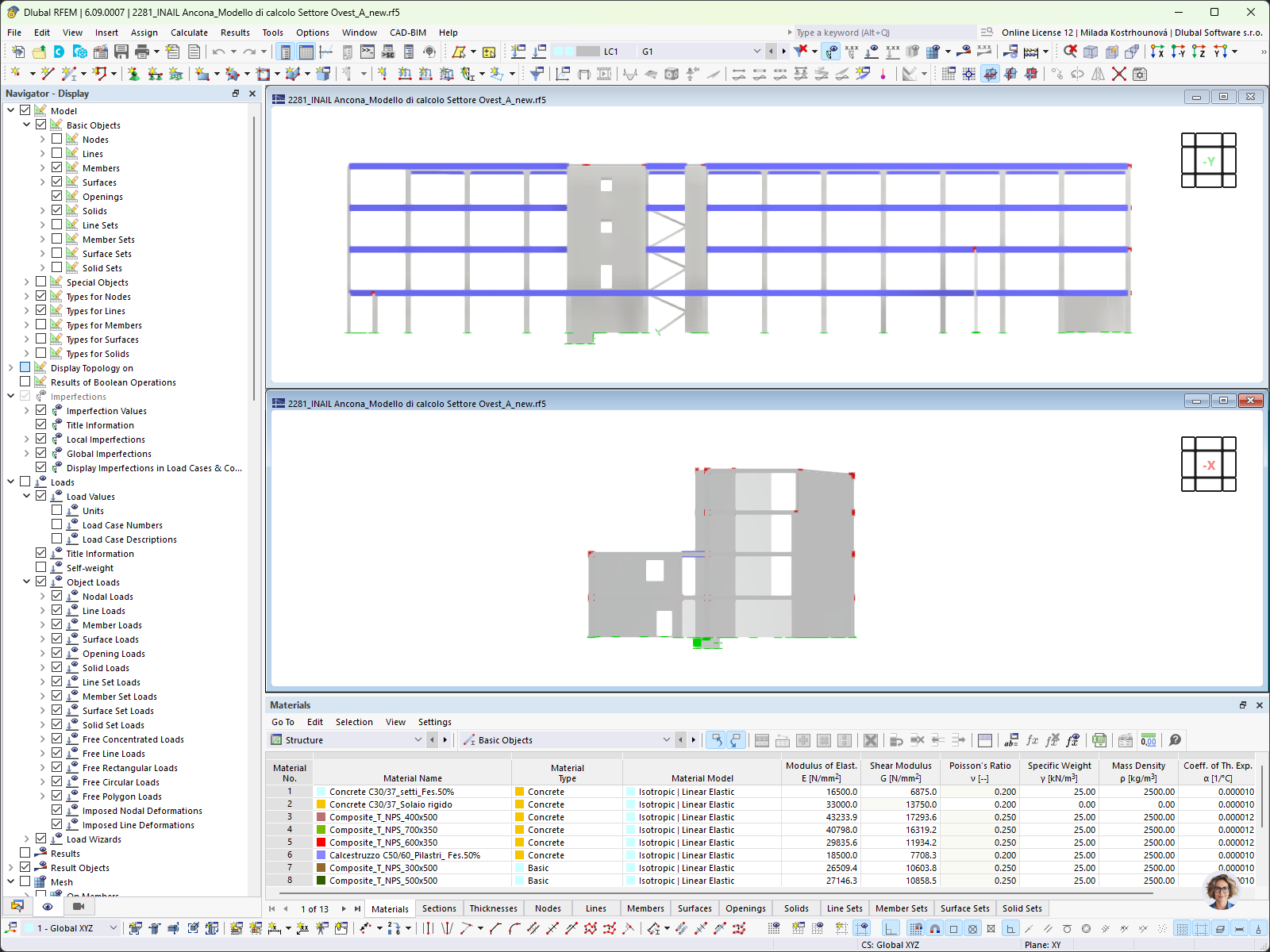
L’image illustre la conversion de l’ancien lycée IPSIA en le nouveau siège du INAIL à Ancône, en Italie. Le bâtiment s’étend sur 6 600 m² répartis sur quatre niveaux hors sol et présente de grands volumes accentués par un revêtement en pierre et des ouvertures rythmiques. Des vides réguliers, une entrée transparente imposante et des couleurs soigneusement choisies soulignent sa fonction publique. La conception utilise du béton armé précontraint préfabriqué et la méthodologie BIM pour garantir l’efficacité, avec des espaces dédiés à l’hydrothérapie, à la santé et à la réhabilitation, ainsi que des bureaux pour les autorités régionales.
  • Siège de l’INAIL
  • Projet de rénovation
  • Design durable
  • Modélisation BIM
  • Béton armé précontraint préfabricqué
Utilisé dans
  • Siège de l’INAIL à Ancône, Italie
Modèle 3D
Non disponible au téléchargement Projet client / vue uniquement
En savoir plus sur le modèle 3D
  • Siège social de l’INAIL à Ancône
Spécifications
Nombre de nœuds 571
Nombre de lignes 976
Nombre de barres 613
Nombre de surfaces 236
Nombre de solides 0
Nombre de cas de charge 15
Nombre de combinaisons de charges 127
Nombre de combinaisons de résultats 5
Poids total 1953,721 t
Dimensions (métriques) 71,050 x 16,176 x 23,935 m
Dimensions (impériales) 233.1 x 53.07 x 78.53 feet
Partager