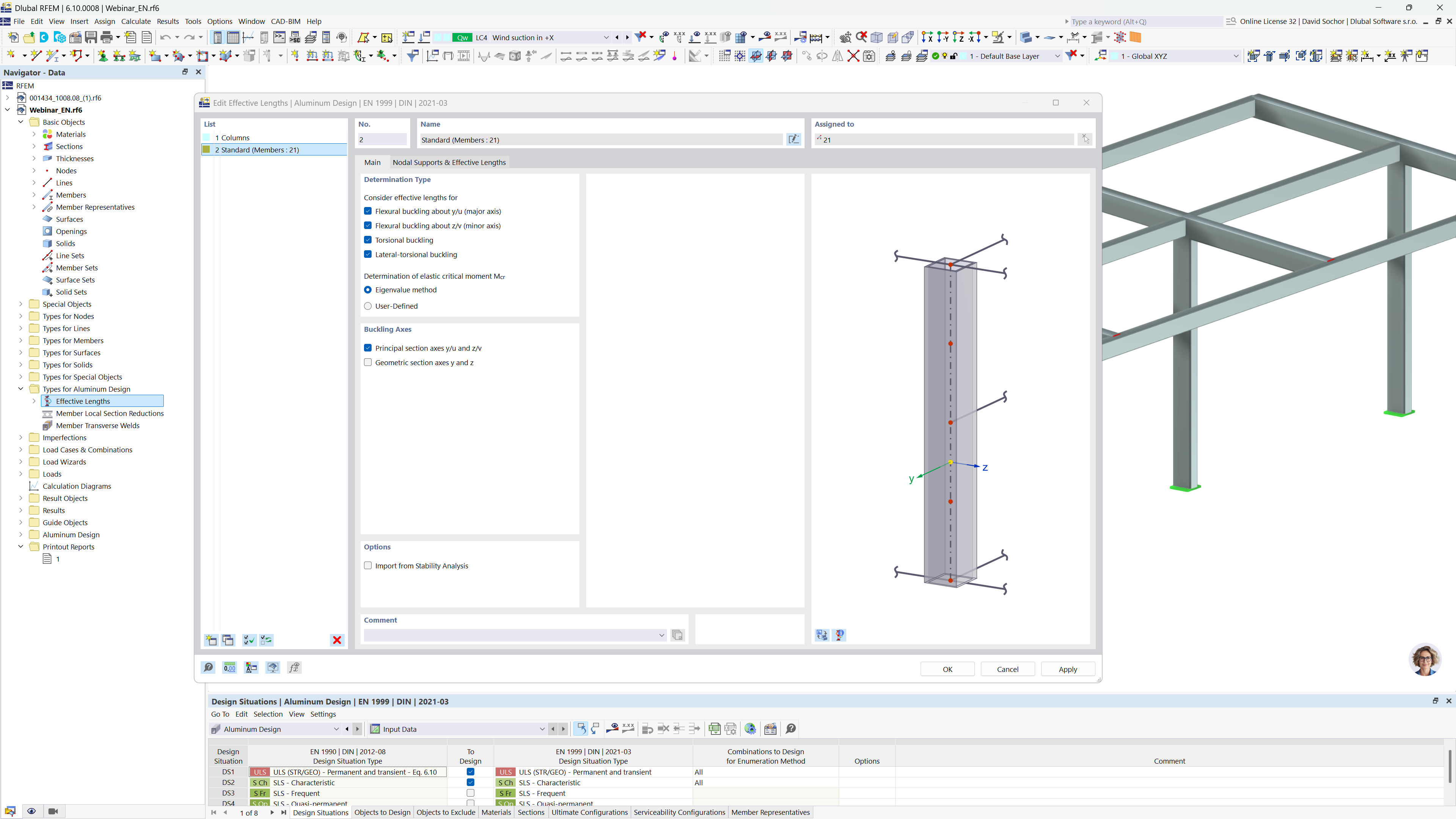
Boîte de dialogue indiquant les paramètres de longueur efficace pour l’analyse de stabilité des barres en aluminium dans RFEM 6.
Boîte de dialogue indiquant les paramètres de longueur efficace pour l’analyse de stabilité des barres en aluminium dans RFEM 6.
24.07.2025
057940
  • RFEM 6

Définition de la longueur efficace pour les barres en aluminium dans RFEM 6

Boîte de dialogue indiquant les paramètres de longueur efficace pour l’analyse de stabilité des barres en aluminium dans RFEM 6.

La boîte de dialogue dans RFEM 6 permet de définir des longueurs efficaces pour les barres en aluminium, cruciales pour l'analyse de stabilité. Elle inclut des champs de saisie pour les appuis nodaux et les coefficients de longueur efficace. Le module complémentaire « Vérification de l’aluminium » nécessite ces définitions pour garantir des vérifications fiables. L'affichage graphique dans la fenêtre de travail aide à vérifier la précision des données saisies.
  • Longueur efficace
  • Vérification de l’aluminium
  • Analyse de stabilité
  • RFEM 6
  • Appuis nodaux
Partager