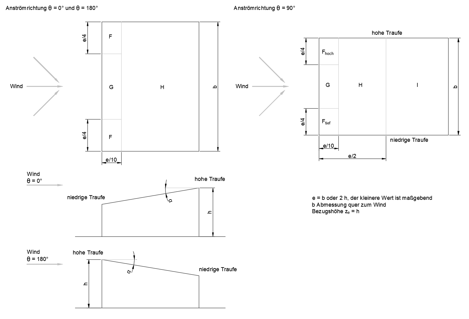
Einteilung der Dachflächen beim Pultdach
Einteilung der Dachflächen beim Pultdach
2024-05-30
009021
  • RFEM 5
  • RSTAB 8
  • RX-TIMBER Glued-Laminated Beam 2
    • Tetto RX-TIMBER 2
    • Trave continua RX-TIMBER 2
    • Arcareccio RX-TIMBER 2
    • Telaio RX-TIMBER 2
    • RX-TIMBER colonna 2
    • Controvento RX-TIMBER 2
    • Strutture in calcestruzzo
    • Strutture in acciaio
    • Strutture di legno
    • Edifici
    • Analisi e progettazione strutturale
    • Eurocode 0
    • Eurocode 1

Einteilung der Dachflächen beim Pultdach

Usato in
  • Carico da vento sui tetti Monopitch e Duopitch in Germania
Condividi