Fondazioni in calcestruzzo modellate digitalmente nel modello di calcolo RFEM 6
Fondazioni in calcestruzzo modellate digitalmente nel modello di calcolo RFEM 6
2024-10-02
052941
  • RFEM 6
  • Strutture in calcestruzzo

Fondazioni in calcestruzzo RFEM 6

Fondazioni in calcestruzzo modellate digitalmente nel modello di calcolo RFEM 6

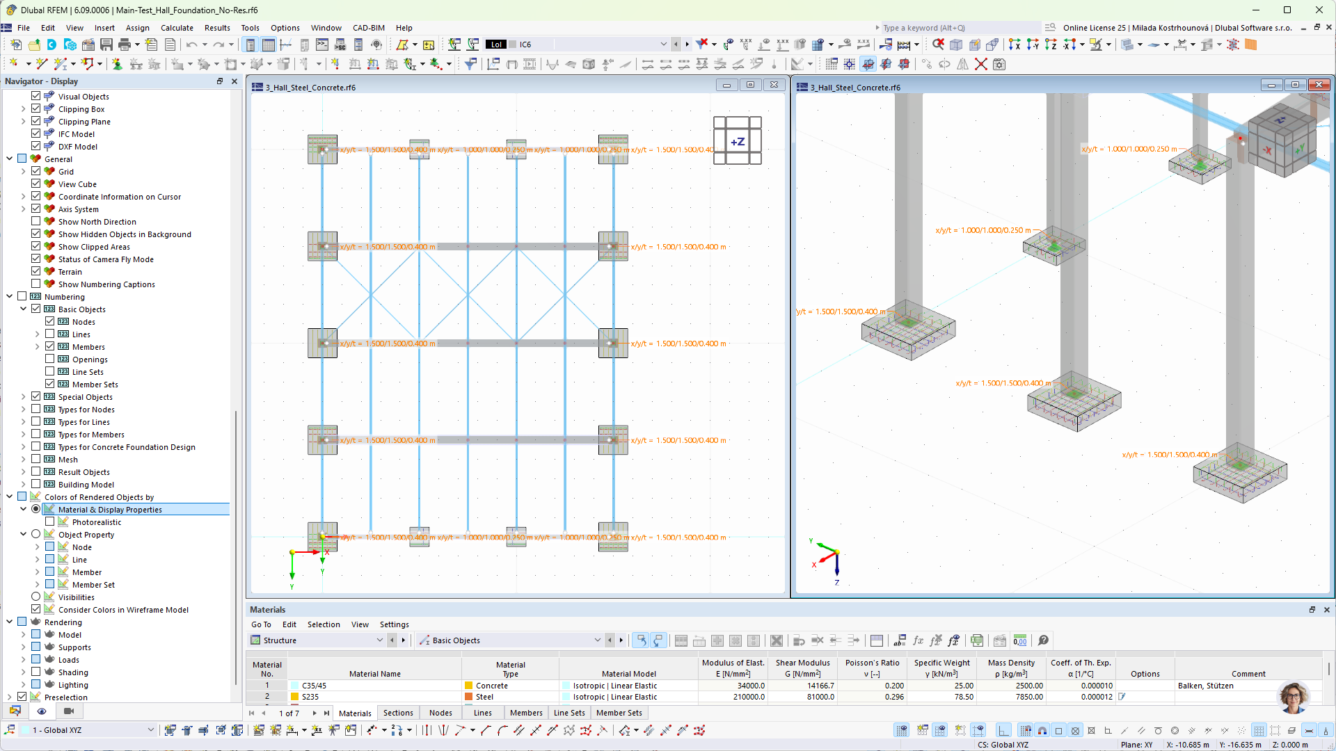
L'immagine mostra fondazioni in calcestruzzo modellate digitalmente, costruite nell'ambito di analisi di calcolo con l'utilizzo di RFEM 6. Sono rappresentate strutture di componenti delle fondazioni con contorni chiaramente riconoscibili per illustrare la distribuzione dei carichi e la struttura in calcestruzzo.
  • Fondazioni in calcestruzzo
  • RFEM 6
  • Modello di fondazione
  • Modello di calcolo
  • Ingegneria digitale
Condividi