FAQ 005629 | Come analizzare le reazioni ai vincoli alle linee di supporto delle superfici? Sono utili i risultati delle sezioni?
FAQ 005629 | Come analizzare le reazioni ai vincoli alle linee di supporto delle superfici? Sono utili i risultati delle sezioni?
2024-11-24
054089
  • RFEM 6
  • Analisi e progettazione strutturale
  • Analisi agli elementi finiti

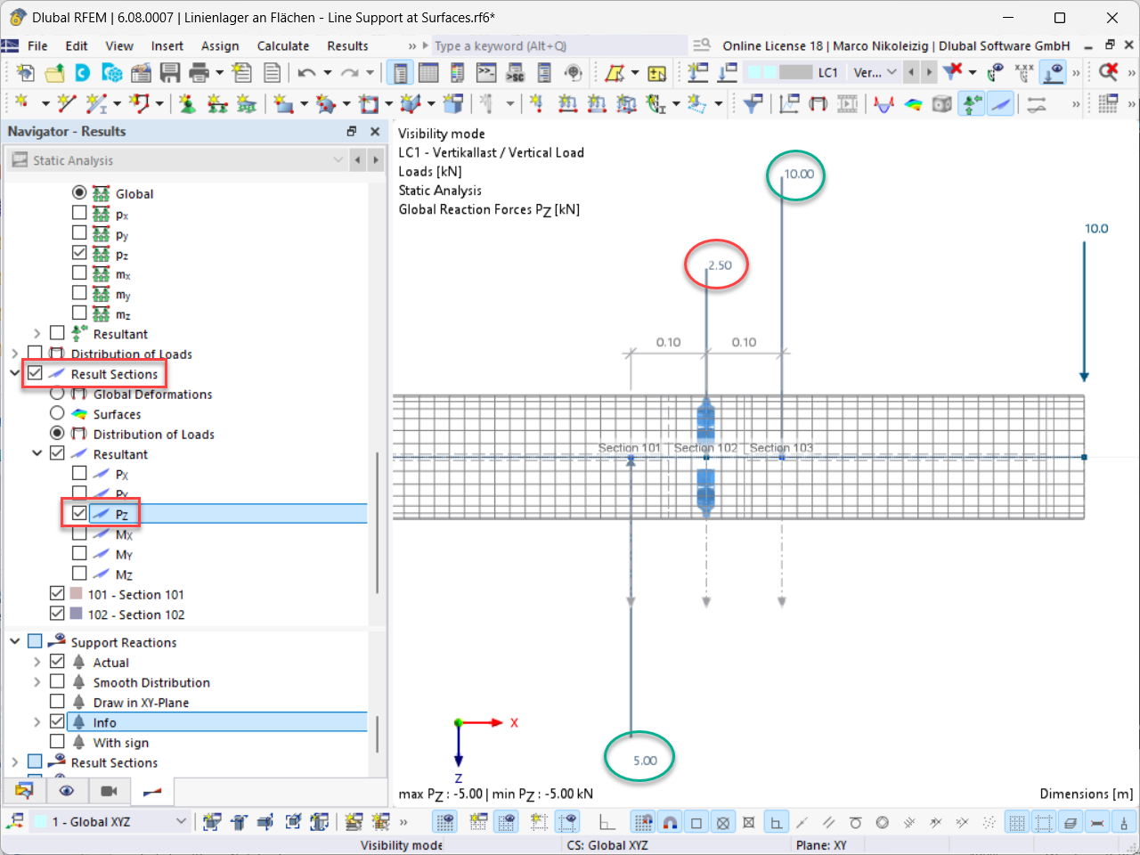
Visualizzazione della distribuzione dei carichi risultanti nelle sezioni 101-103

FAQ 005629 | Come analizzare le reazioni ai vincoli alle linee di supporto delle superfici? Sono utili i risultati delle sezioni?

  • Supporto lineare
  • Reazione di supporto
  • Risultante
  • Forza di supporto
  • Sezione di risultato
  • Sezione
  • Tabella di risultato
  • Modello superficiale
  • Analisi della reazione di supporto
  • Salto di forza laterale
  • Linea di supporto
  • Supporto a punto
  • Andamento del risultato
  • Smussatura costante
  • Casella informativa
  • Possibilità di analisi
  • Struttura a barre
  • Controllo della modellazione
  • Trave a campata unica
  • Braccio esteso
  • Tubo
  • Sezione trasversale del tubo
Condividi