Konwersja na przekrój parametryczny
  • 3D Viewer
  • 3D Viewer | Babylon
  • Wirtualna rzeczywistość
Anpassung des parametrischen Profils
  • 3D Viewer
  • 3D Viewer | Babylon
  • Wirtualna rzeczywistość
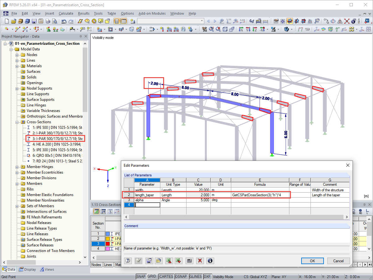
Parametryzacja długości stożka w zależności od wysokości przekroju
  • 3D Viewer
  • 3D Viewer | Babylon
  • Wirtualna rzeczywistość
Hala stalowa
  • 3D Viewer
  • 3D Viewer | Babylon
  • Wirtualna rzeczywistość
Your browser does not support the video tag.
  • 3D Viewer
  • 3D Viewer | Babylon
  • Wirtualna rzeczywistość
Konwersja na przekrój parametryczny
Anpassung des parametrischen Profils
Parametryzacja długości stożka w zależności od wysokości przekroju
Hala stalowa
Your browser does not support the video tag.
2024-05-30
010270
  • RFEM 5
  • RSTAB 8
  • Konstrukcje stalowe

Konwersja na przekrój parametryczny

Wykorzystano w
  • Parametryzacja przekrojów walcowanych
Model 3D
Więcej o modelu 3D
  • Hala stalowa Parametryzacja przekroju walcowanego
Specyfikacje
Liczba węzłów 65
Liczba linii 112
Liczba prętów 112
Ilość przypadków obciążenia 16
Ilość KO 328
Liczba kombinacji wyników 2
Ciężar całkowity 19,204 t
Wymiary (metryczne) 20,587 x 30,587 x 7,169 m
Wymiary (imperialne) 67.54 x 100.35 x 23.52 feet
Wersja programu 5.23.02
Udostępnij
2024-05-30
021860
  • RFEM 5
  • RSTAB 8
  • Konstrukcje stalowe
Anpassung des parametrischen Profils
Wykorzystano w
  • Parametryzacja przekrojów walcowanych
Model 3D
Więcej o modelu 3D
  • Hala stalowa Parametryzacja przekroju walcowanego
Specyfikacje
Liczba węzłów 65
Liczba linii 112
Liczba prętów 112
Ilość przypadków obciążenia 16
Ilość KO 328
Liczba kombinacji wyników 2
Ciężar całkowity 19,204 t
Wymiary (metryczne) 20,587 x 30,587 x 7,169 m
Wymiary (imperialne) 67.54 x 100.35 x 23.52 feet
Wersja programu 5.23.02
Udostępnij
2024-05-30
021861
  • RFEM 5
  • RSTAB 8
  • Konstrukcje stalowe
Parametryzacja długości stożka w zależności od wysokości przekroju
Wykorzystano w
  • Parametryzacja przekrojów walcowanych
Model 3D
Więcej o modelu 3D
  • Hala stalowa Parametryzacja przekroju walcowanego
Specyfikacje
Liczba węzłów 65
Liczba linii 112
Liczba prętów 112
Ilość przypadków obciążenia 16
Ilość KO 328
Liczba kombinacji wyników 2
Ciężar całkowity 19,204 t
Wymiary (metryczne) 20,587 x 30,587 x 7,169 m
Wymiary (imperialne) 67.54 x 100.35 x 23.52 feet
Wersja programu 5.23.02
Udostępnij
2024-05-30
021862
  • RFEM 5
  • Konstrukcje stalowe
Hala stalowa
Wykorzystano w
  • Parametryzacja przekrojów walcowanych
Model 3D
Więcej o modelu 3D
  • Hala stalowa Parametryzacja przekroju walcowanego
Specyfikacje
Liczba węzłów 65
Liczba linii 112
Liczba prętów 112
Ilość przypadków obciążenia 16
Ilość KO 328
Liczba kombinacji wyników 2
Ciężar całkowity 19,204 t
Wymiary (metryczne) 20,587 x 30,587 x 7,169 m
Wymiary (imperialne) 67.54 x 100.35 x 23.52 feet
Wersja programu 5.23.02
Udostępnij
2024-03-09
021920
  • RFEM 5
  • Konstrukcje stalowe
  • Analiza stateczności
Odkształcenie hali pod wpływem obciążenia wiatrem, animacja
Odkształcenie hali przez obciążenie wiatrem

Model 3D
Więcej o modelu 3D
  • Hala stalowa Parametryzacja przekroju walcowanego
Specyfikacje
Liczba węzłów 65
Liczba linii 112
Liczba prętów 112
Ilość przypadków obciążenia 16
Ilość KO 328
Liczba kombinacji wyników 2
Ciężar całkowity 19,204 t
Wymiary (metryczne) 20,587 x 30,587 x 7,169 m
Wymiary (imperialne) 67.54 x 100.35 x 23.52 feet
Wersja programu 5.23.02
Udostępnij