Aktywacja rozszerzenia Analiza geotechniczna
Definiowanie materiałów typu "Grunt"
Wybór materiału z biblioteki
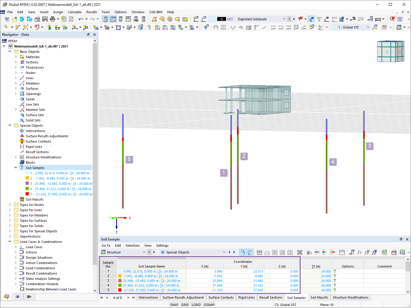
Definiowanie próbek gruntu
Profile gruntowe
Generowanie masywu gruntowego z próbek gruntu
Wygenerowany masyw gruntowy
Podpory powierzchniowe
Aktywacja rozszerzenia Analiza geotechniczna
Definiowanie materiałów typu "Grunt"
Wybór materiału z biblioteki
Definiowanie próbek gruntu
Profile gruntowe
Generowanie masywu gruntowego z próbek gruntu
Wygenerowany masyw gruntowy
Podpory powierzchniowe
2022-04-14
031006
  • RFEM 6
  • Analiza geotechniczna RFEM 6

Aktywacja rozszerzenia Analiza geotechniczna

  • Analiza geotechniczna
Wykorzystano w
  • Tworzenie bryły gruntu z próbek gruntu w programie RFEM 6
Udostępnij
2022-04-14
031007
  • RFEM 6
  • Analiza geotechniczna RFEM 6
Definiowanie materiałów typu "Grunt"
  • Materiały gruntowe
  • Analiza geotechniczna
Wykorzystano w
  • Tworzenie bryły gruntu z próbek gruntu w programie RFEM 6
Udostępnij
2022-04-14
031012
  • RFEM 6
  • Analiza geotechniczna RFEM 6
Wybór materiału z biblioteki
  • Materiały gruntowe
  • Analiza geotechniczna
Wykorzystano w
  • Tworzenie bryły gruntu z próbek gruntu w programie RFEM 6
Udostępnij
2022-04-14
031013
  • RFEM 6
  • Analiza geotechniczna RFEM 6
Definiowanie próbek gruntu
  • Próbki gruntu
  • Analiza geotechniczna
Wykorzystano w
  • Tworzenie bryły gruntu z próbek gruntu w programie RFEM 6
Udostępnij
2022-04-14
031014
  • RFEM 6
  • Analiza geotechniczna RFEM 6
Profile gruntowe
  • Profile gruntowe
  • Analiza geotechniczna
Wykorzystano w
  • Tworzenie bryły gruntu z próbek gruntu w programie RFEM 6
Udostępnij
2022-04-14
031015
  • RFEM 6
  • Analiza geotechniczna RFEM 6
Generowanie masywu gruntowego z próbek gruntu
  • Próbki gruntu
  • Masyw gruntowy
Wykorzystano w
  • Tworzenie bryły gruntu z próbek gruntu w programie RFEM 6
Udostępnij
2022-04-14
031016
  • RFEM 6
  • Analiza geotechniczna RFEM 6
Wygenerowany masyw gruntowy
  • Masyw gruntowy
  • Analiza geotechniczna
Wykorzystano w
  • Tworzenie bryły gruntu z próbek gruntu w programie RFEM 6
Udostępnij
2022-04-14
031017
  • RFEM 6
  • Analiza geotechniczna RFEM 6
Podpory powierzchniowe
  • Podpory powierzchniowe
  • Masyw gruntowy
  • Bryła gruntu
  • Analiza geotechniczna
Wykorzystano w
  • Tworzenie bryły gruntu z próbek gruntu w programie RFEM 6
Udostępnij