Przykład weryfikacji 1024 | ścinanie w styku między betonami
Przykład weryfikacji 1024 | ścinanie w styku między betonami
2024-08-13
042002
  • RFEM 6

Przykład weryfikacji 1024 | ścinanie w styku między betonami

Wykorzystano w
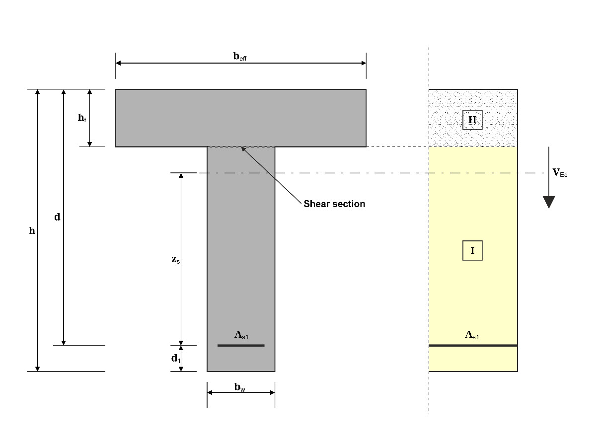
  • VE 1024 | Ścinanie na styku elementów betonowych odlane zgodnie z DIN EN 1992-1-1
Udostępnij