Wirtualny model fundamentów betonowych w RFEM 6
Wirtualny model fundamentów betonowych w RFEM 6
2024-10-02
052941
  • RFEM 6
  • Konstrukcje betonowe

Betonowe fundamenty RFEM 6

Wirtualny model fundamentów betonowych w RFEM 6

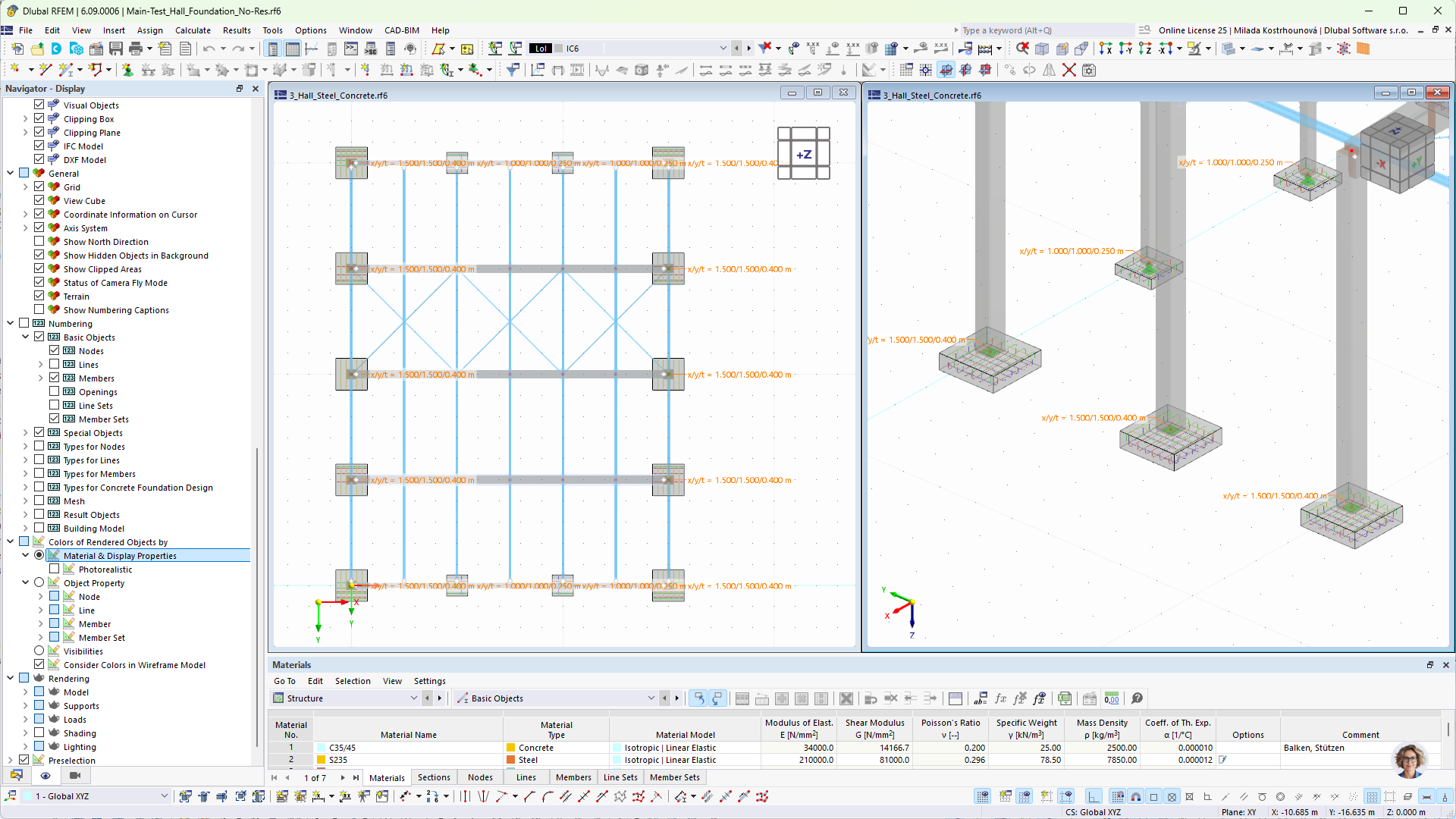
Obraz przedstawia cyfrowo wymodelowane fundamenty betonowe skonstruowane w ramach analiz obliczeniowych za pomocą programu RFEM 6. Pokazane są poszczególne struktury elementów fundamentu o wyraźnie zarysowanych konturach, aby zobrazować rozkład obciążeń i konstrukcję betonową.
  • Fundamenty betonowe
  • RFEM 6
  • Model fundamentu
  • Model obliczeniowy
  • Inżynieria cyfrowa
Udostępnij