Generowanie linii środkowych ścian
Generowanie linii środkowych ścian
2024-11-14
053828
  • RFEM 6

Generowanie linii środkowych ścian

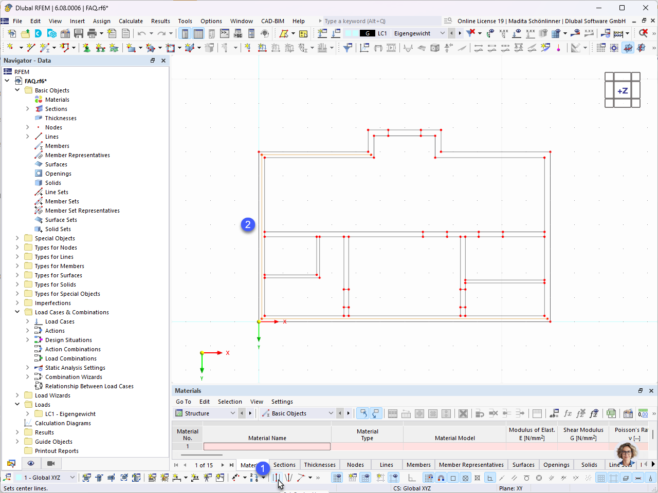
Na rysunku przedstawiono funkcjonalność oprogramowania RFEM 6 do automatycznego generowania osi i linii środkowych ścian. Te funkcje ułatwiają inżynierom efektywne modelowanie i planowanie projektów budowlanych, oszczędzając czas i zwiększając dokładność wprowadzonych danych. Proces automatycznego generowania umożliwia płynne i bezbłędne zintegrowanie konstrukcji ścian w całym modelu budynku. Jest to szczególnie przydatne do optymalizacji i szczegółowego opracowywania projektów budowlanych w zakresie budownictwa lądowego.
  • Linia środkowa
  • Oś ściany
Udostępnij