FAQ 005629 | Jak analizować reakcje podporowe w linowych podporach powierzchni? Czy przekroje wynikowe są pomocne?
FAQ 005629 | Jak analizować reakcje podporowe w linowych podporach powierzchni? Czy przekroje wynikowe są pomocne?
2024-11-24
054089
  • RFEM 6
  • Analiza statyczno-wytrzymałościowa
  • Analiza metodą elementów skończonych

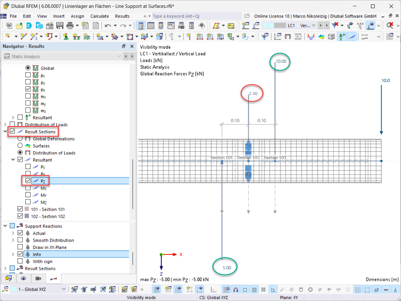
Wizualizacja rozkładu obciążenia w przekrojach 101 do 103

FAQ 005629 | Jak analizować reakcje podporowe w linowych podporach powierzchni? Czy przekroje wynikowe są pomocne?

  • Podpora liniowa
  • Reakcja podporowa
  • Wektor wynikowy
  • Siła podparcia
  • Przekrój wynikowy
  • Przekrój
  • Tabela wyników
  • Model powierzchniowy
  • Analiza reakcji podporowej
  • Skok siły poprzecznej
  • Linia podpory
  • Podpora punktowa
  • Przebieg wyników
  • Stałe wygładzanie
  • Infobox
  • Możliwość analizy
  • Konstrukcja szkieletowa
  • Kontrola modelowania
  • Belka jednoprzęsłowa
  • Wspornik
  • Rura
  • Przekrój rury
Udostępnij