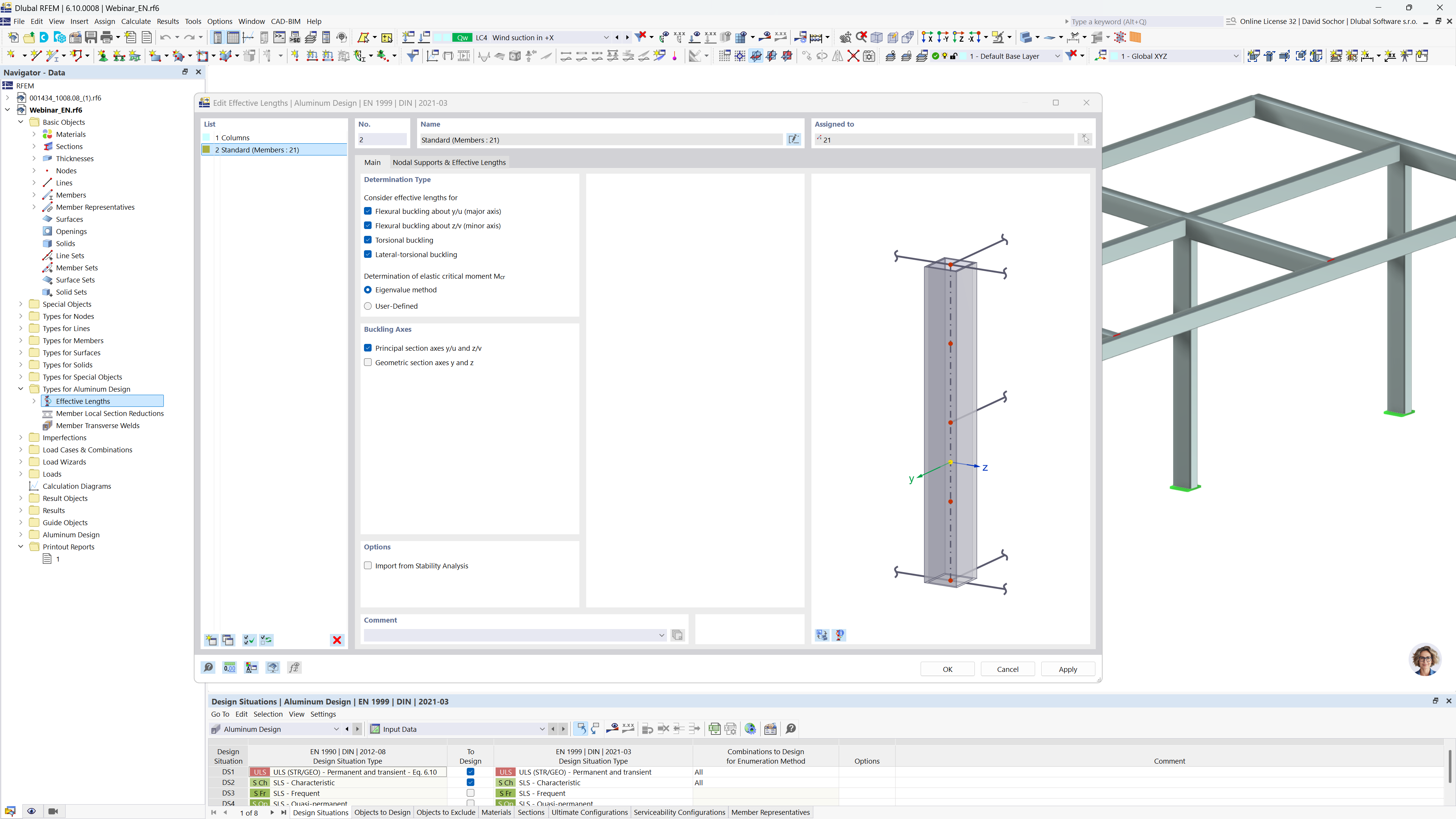
Okno dialogowe pokazujące ustawienia długości efektywnych dla analizy stateczności prętów aluminiowych  w programie RFEM 6.
Okno dialogowe pokazujące ustawienia długości efektywnych dla analizy stateczności prętów aluminiowych  w programie RFEM 6.
2025-07-24
057940
  • RFEM 6

Definicja długości efektywnej dla prętów aluminiowych w RFEM 6

Okno dialogowe pokazujące ustawienia długości efektywnych dla analizy stateczności prętów aluminiowych w programie RFEM 6.

Okno dialogowe w RFEM 6 pozwala na definiowanie długości efektywnych dla prętów aluminiowych, co jest kluczowe dla analizy stateczności. Zawiera pola wejściowe dla podpór węzłowych i współczynników długości efektywnych. Wymaga tego rozszerzenie Projektowanie konstrukcji aluminiowych, aby zapewnić niezawodność wymiarowania. Wyświetlanie graficzne w oknie roboczym pomaga w weryfikacji dokładności wprowadzanych danych.
  • Długość efektywna
  • Projektowanie konstrukcji aluminiowych
  • Analiza stateczności
  • RFEM 6
  • Podpory węzłowe
Udostępnij