Estrutura de camadas com propriedades de rigidez e resistência para o Stora Enso CLT 100 C5s
Dimensionamento de barra equivalente de acordo com EN-1995-1-1, Capítulo 6.3.2
Normalkraftverlauf des Ergebnisstabes und Ermittlung der effektiven Breite
Korrektur der Querschnittsfläche über die Knicklänge
Dimensionamento no RF-TIMBER Pro
Estrutura de camadas com propriedades de rigidez e resistência para o Stora Enso CLT 100 C5s
Dimensionamento de barra equivalente de acordo com EN-1995-1-1, Capítulo 6.3.2
Normalkraftverlauf des Ergebnisstabes und Ermittlung der effektiven Breite
Korrektur der Querschnittsfläche über die Knicklänge
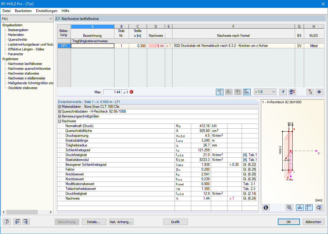
Dimensionamento no RF-TIMBER Pro
2024-05-30
009660
  • RFEM 5
  • RF-TIMBER Pro 5
  • RF-STABILITY 5
    • Estruturas de madeira
    • Análise de estabilidade
    • Eurocode 5

Estrutura de camadas com propriedades de rigidez e resistência para o Stora Enso CLT 100 C5s

Utilizado em
  • Análise de estabilidade de elementos de superfície exemplificado numa parede de madeira laminada cruzada - 2ª parte
Partilhar
2024-05-30
009661
  • RFEM 5
  • RF-TIMBER Pro 5
  • RF-STABILITY 5
    • Estruturas de madeira
    • Análise de estabilidade
    • Eurocode 5
Dimensionamento de barra equivalente de acordo com EN-1995-1-1, Capítulo 6.3.2
Utilizado em
  • Análise de estabilidade de elementos de superfície exemplificado numa parede de madeira laminada cruzada - 2ª parte
Partilhar
2024-05-30
009662
  • RFEM 5
  • RF-TIMBER Pro 5
  • RF-STABILITY 5
    • Estruturas de madeira
    • Análise de estabilidade
    • Eurocode 5
Normalkraftverlauf des Ergebnisstabes und Ermittlung der effektiven Breite
Utilizado em
  • Análise de estabilidade de elementos de superfície exemplificado numa parede de madeira laminada cruzada - 2ª parte
Partilhar
2024-05-30
009663
  • RFEM 5
  • RF-TIMBER Pro 5
  • RF-STABILITY 5
    • Estruturas de madeira
    • Análise de estabilidade
    • Eurocode 5
Korrektur der Querschnittsfläche über die Knicklänge
Utilizado em
  • Análise de estabilidade de elementos de superfície exemplificado numa parede de madeira laminada cruzada - 2ª parte
Partilhar
2024-05-30
009664
  • RFEM 5
  • RF-TIMBER Pro 5
  • RF-STABILITY 5
    • Estruturas de madeira
    • Análise de estabilidade
    • Eurocode 5
Dimensionamento no RF-TIMBER Pro
Utilizado em
  • Análise de estabilidade de elementos de superfície exemplificado numa parede de madeira laminada cruzada - 2ª parte
Partilhar