Superfícies de aço
  • Visualizador 3D
  • Visualizador 3D | Babylon
  • Realidade virtual
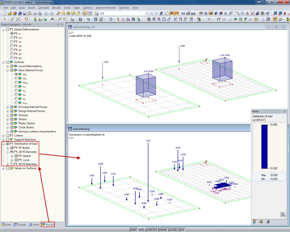
Representação da distribuição de carga
  • Visualizador 3D
  • Visualizador 3D | Babylon
  • Realidade virtual
Superfícies de aço
Representação da distribuição de carga
2024-05-30
015908
  • RFEM 5
  • Estruturas de aço
  • Análise de elementos finitos

Superfícies de aço

Utilizado em
  • Representação da distribuição da carga 1
Modelo 3D
Mais sobre modelo 3D
  • Distribuição de Carga em Superfície de Aço
Especificações
Número de nós 8
Número de linhas 8
Número de superfícies 2
Número de casos de carga 1
Peso total 1,256 t
Dimensões (métricas) 4,000 x 5,000 x 0,000 m
Dimensões (imperial) 13.12 x 16.4 x 0 feet
Versão do programa 5.23.02
Partilhar
2024-05-30
010267
  • RFEM 5
  • Análise de elementos finitos
Representação da distribuição de carga
Utilizado em
  • Representação da distribuição da carga 1
Modelo 3D
Mais sobre modelo 3D
  • Distribuição de Carga em Superfície de Aço
Especificações
Número de nós 8
Número de linhas 8
Número de superfícies 2
Número de casos de carga 1
Peso total 1,256 t
Dimensões (métricas) 4,000 x 5,000 x 0,000 m
Dimensões (imperial) 13.12 x 16.4 x 0 feet
Versão do programa 5.23.02
Partilhar