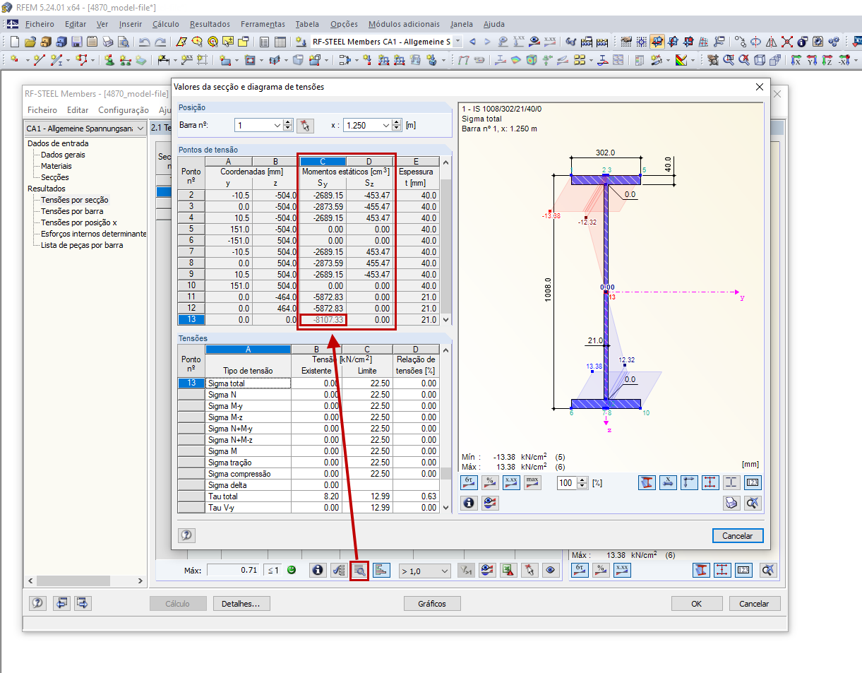
Momentos estáticos no RF-/STEEL
Momentos estáticos no RF-/STEEL
2024-05-30
019737
  • PLATE-BUCKLING 8
  • PLATE-BUCKLING 8 | Autónomo
  • RF-STEEL 5
    • STEEL 8
    • RF-PLATE-BUCKLING 5
    • Estruturas de aço
    • Análise de tensões
    • Análise de encurvadura não linear
    • Análise de estabilidade
    • DIN 18800

Momentos estáticos no RF-/STEEL

Utilizado em
  • Tensão de corte no FE-BEUL e RF-/STEEL
Partilhar