Resultados da análise espectral por piso
  • Visualizador 3D
  • Visualizador 3D | Babylon
  • Realidade virtual
Modelo 003285 | Edifício
  • Visualizador 3D
  • Visualizador 3D | Babylon
  • Realidade virtual
  • Visualizador 3D
  • Visualizador 3D | Babylon
  • Realidade virtual
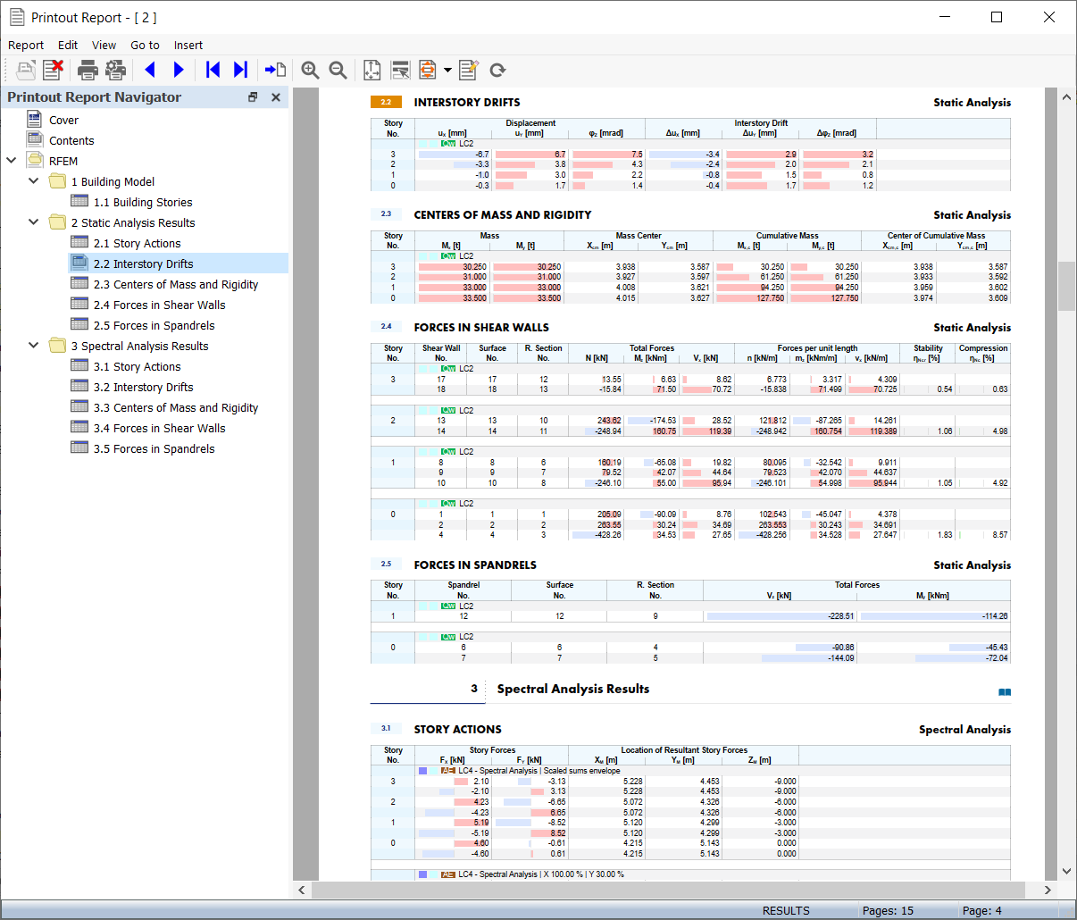
Relatório de impressão com dados do modelo de edifício
  • Visualizador 3D
  • Visualizador 3D | Babylon
  • Realidade virtual
Resultados da análise espectral por piso
Modelo 003285 | Edifício
Relatório de impressão com dados do modelo de edifício
2024-07-01
031822
  • RFEM 6
  • Modelo do edifício para o RFEM 6

Resultados da análise espectral por piso

Modelo 3D
Mais sobre modelo 3D
  • Construção de análise dinâmica do modelo
Especificações
Número de nós 51
Número de linhas 73
Número de barras 16
Número de superfícies 17
Número de sólidos 0
Número de casos de carga 4
Número de combinações de cargas 3
Número de combinações de resultados 0
Peso total 127,750 t
Dimensões (métricas) 8,000 x 12,000 x 7,000 m
Dimensões (imperial) 26.25 x 39.37 x 22.97 feet
Partilhar
2024-03-09
031380
  • RFEM 5
Edifício
Modelo 003285 | Edifício

Utilizado em
  • Edifício
Modelo 3D
Mais sobre modelo 3D
  • Edifício
Especificações
Número de nós 64
Número de linhas 84
Número de barras 16
Número de superfícies 20
Número de sólidos 0
Número de casos de carga 2
Número de combinações de cargas 7
Número de combinações de resultados 0
Peso total 132,032 t
Dimensões (métricas) 8,000 x 12,000 x 8,000 m
Dimensões (imperial) 26.25 x 39.37 x 26.25 feet
Partilhar
2024-03-09
031823
  • RFEM 6
Utilizado em
  • Construção de análise dinâmica do modelo
Modelo 3D
Mais sobre modelo 3D
  • Construção de análise dinâmica do modelo
Especificações
Número de nós 51
Número de linhas 73
Número de barras 16
Número de superfícies 17
Número de sólidos 0
Número de casos de carga 4
Número de combinações de cargas 3
Número de combinações de resultados 0
Peso total 127,750 t
Dimensões (métricas) 8,000 x 12,000 x 7,000 m
Dimensões (imperial) 26.25 x 39.37 x 22.97 feet
Partilhar
2024-03-09
031885
  • RFEM 6
  • Modelo do edifício para o RFEM 6
Relatório de impressão com dados do modelo de edifício
Modelo 3D
Mais sobre modelo 3D
  • Construção de análise dinâmica do modelo
Especificações
Número de nós 51
Número de linhas 73
Número de barras 16
Número de superfícies 17
Número de sólidos 0
Número de casos de carga 4
Número de combinações de cargas 3
Número de combinações de resultados 0
Peso total 127,750 t
Dimensões (métricas) 8,000 x 12,000 x 7,000 m
Dimensões (imperial) 26.25 x 39.37 x 22.97 feet
Partilhar