FAQ 005629 | Como é que posso analisar reações de apoio em apoios de linha de superfícies? As secções resultantes são úteis?
FAQ 005629 | Como é que posso analisar reações de apoio em apoios de linha de superfícies? As secções resultantes são úteis?
2024-11-24
054089
  • RFEM 6
  • Cálculos estruturais e dimensionamento
  • Análise de elementos finitos

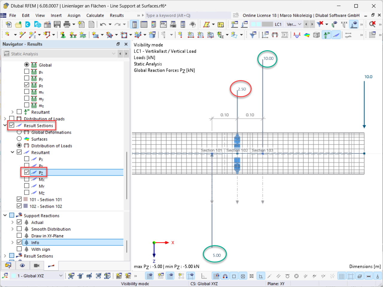
Distribuição de carga resultante nas secções 101 a 103

FAQ 005629 | Como é que posso analisar reações de apoio em apoios de linha de superfícies? As secções resultantes são úteis?

  • Apoio de linha
  • Reação de apoio
  • Resultante
  • Força de apoio
  • Secção resultante
  • Secção
  • Barra resultante
  • Modelo de superfície
  • Análise da reação de apoio
  • Salto de força de corte
  • Linha de apoio
  • Apoio pontual
  • Diagrama de resultados
  • Suavização constante
  • Caixa de informação
  • Opção de análise
  • Estrutura de barras
  • Verificação de modelação
  • Viga de um vão
  • Viga em consola
  • Tubo
  • Secção de tubo
Partilhar