Vista lateral de uma torre de observação no RSTAB
Vista lateral de uma torre de observação no RSTAB
2025-10-23
059732
  • RFEM 6

Vista lateral da torre de observação no RSTAB

Vista lateral de uma torre de observação no RSTAB

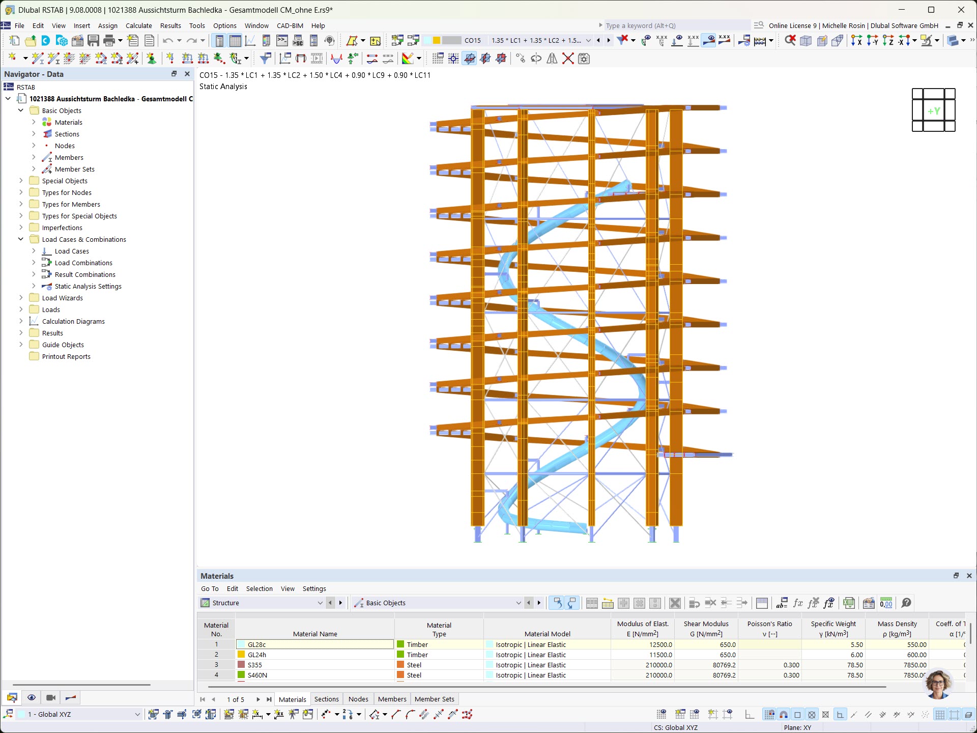
A imagem mostra a vista lateral de uma torre de observação, modelada no software RSTAB. Permite visualizar a estrutura da torre com detalhes relevantes para a análise estrutural. © WIEHAG Timber Construction GmbH
  • Vista lateral
  • Torre de observação
  • RSTAB
  • Análise estrutural
  • Planeamento estrutural
Utilizado em
  • Torre de observação com percurso pelas copas das árvores em Bachledka, Alto Tatra, Eslováquia
Partilhar